Predmet projektnega natečaja
Predmet natečaja: Javni, projektni, enostopenjski natečaj za izbiro strokovno najprimernejše rešitve za PAVILJON IN STOJNICO NA MEDNARODNEM KNJIŽNEM SEJMU V FRANKFURTU 2023
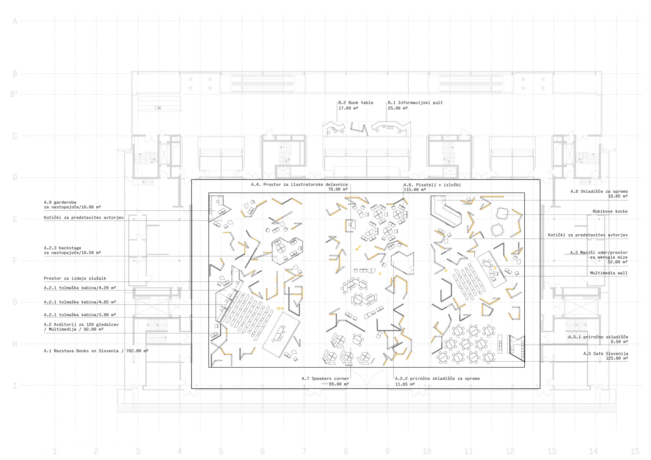
Predmet projektnega natečaja: Slovenija bo na mednarodnem knjižnem sejmu v Frankfurtu oktobra leta 2023 predstavljena kot častna gostja. Za to posebno priložnost, na kateri se predstavlja slovenska literatura, kultura in dežela, je potrebno zasnovati paviljon Slovenije, častne gostje, ter slovensko stojnico.
Naročnik: Javna agencija za knjigo Republike Slovenije
Rok oddaje: 4.10.2022
Povezava na Portal JN
Podatki o nagradnem skladu, priznanjih in odškodninah:
Nagradno odškodninski sklad:
1. nagrada 9.000 EUR
2. nagrada 7.200 EUR
3. nagrada 5.400 EUR
tri priznanja po 600 EUR
Za dodatne informacije in vprašanja o natečaju lahko ponudniki posredujejo vprašanja preko Portala javnih naročil tako, da izberejo možnost “Pošlji vprašanje naročniku”. Naročnik bo odgovore na vprašanja objavil na Portalu javnih naročil v skladu z določenimi roki.
DOKUMENTACIJA
OCENJEVALNA KOMISIJA
Predsednica ocenjevalne komisije (ZAPS):
Mika Cimolini, univ. dipl. inž. arh., MArchBI
Namestnik predsednice ocenjevalne komisije (naročnik):
dr. Dimitrij Rupel, direktor JAKRS
Članica (naročnik):
Bojana Čampa, univ. dipl. um. zg. / zg., vodja projekta
Član (naročnik):
prof. dr. Miha KOVAČ, profesor založniških študij, kurator
Član (ZAPS):
izr. prof. Miran Mohar, slikar, grafični oblikovalec in scenograf
Poročevalka A:
Špela Nardoni Kovač, univ. dipl. inž. arh.
Skrbnica natečaja:
Veronika Ščetinin, univ. dipl. inž. arh.