Odprti projektni natečaj s predizborom (dvostopenjski natečaj) za izbiro strokovno najprimernejše rešitve in izdelovalca projektne dokumentacije za STANOVANJSKO POSLOVNI OBJEKT NT6 V NOVEM MESTU
Predmet projektnega natečaja:
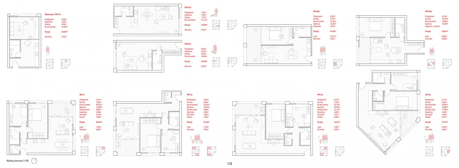
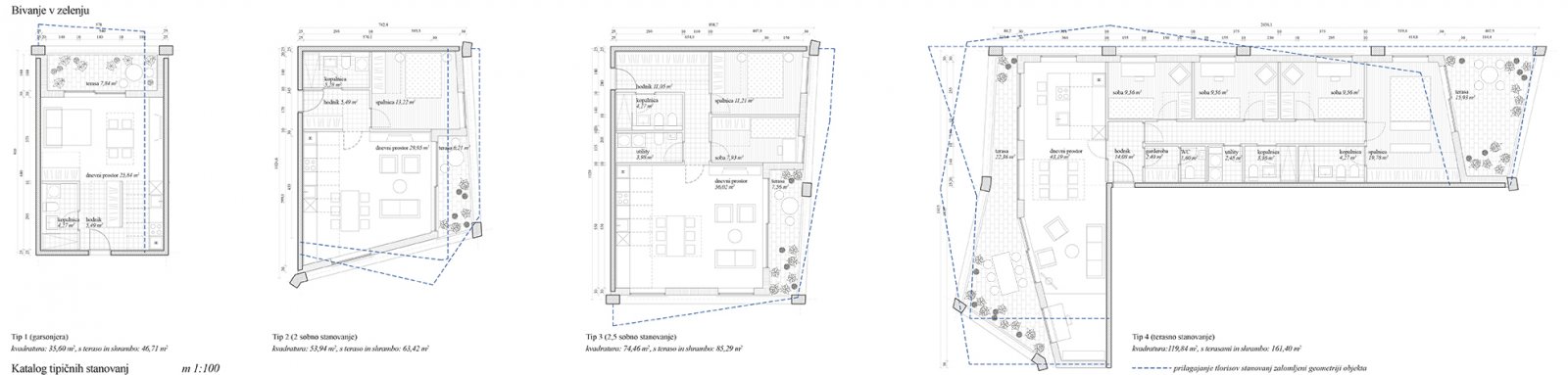
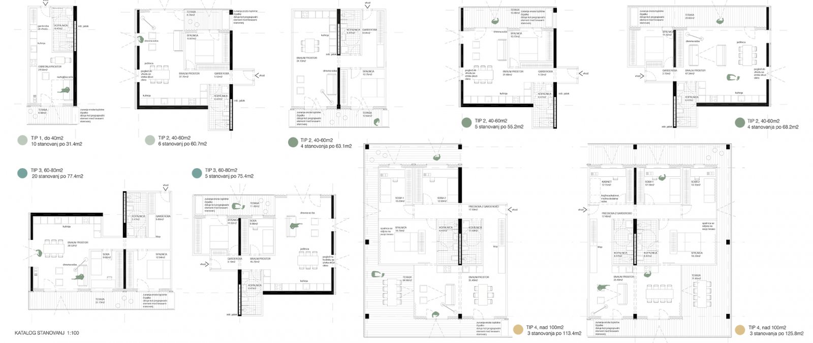
Predmet natečaja je arhitekturna zasnova večnamenskega stanovanjsko poslovnega objekta NT6 in pripadajočega trga ter pridobitev ponudbe za izdelavo projektne dokumentacije za objekt in trg. Predmet natečaja je tudi urbanistična in prometna ureditev območja A1, ki bo izdelovalcu OPPN podlaga za pripravo dopolnjenega osnutka.
Naročnik: Trgograd d.o.o., Litija
Rok oddaje: 23.04.2020
Zaključno poročilo komisije: 15.07.2020
OCENJEVALNA KOMISIJA
Predsednik ocenjevalne komisije (ZAPS):
Matija Bevk, univ. dipl. inž. arh.
Namestnik predsednika ocenjevalne komisije (naročnik):
Tomo Kres
Član (naročnik):
Miha Šegula, univ. dipl. inž. arh.
Član (naročnik):
doc. dr. Tomaž Slak, univ. dipl. inž. arh.
Članica (ZAPS):
Monika Fink Serša, univ. dipl. inž. arh.
Namestnik članov (naročnik):
Andrej Poglajen
Namestnik članov (ZAPS):
Sergej Hiti, univ. dipl. inž. kraj. arh.
Poročevalec A:
Rupert Gole, univ. dipl. inž. arh.
Poročevalka KA:
Špela Kragelj Bračko, univ. dipl. inž. kraj. arh.
Skrbnica natečaja:
Katja Ševerkar, univ. dipl. inž. arh.
Vabilo na razstavo
Odprtje razstave bo v sredo, 19.08.2020 ob 11:00 uri v Galeriji Kocka v Kulturnem centru Janeza Trdine, Novi trg 5, v Novem mestu.
V kolikor se boste udeležili otvoritve razstave se morate obvezno prijaviti na e-naslov: miha.segula@trgograd.net.
Razstava bo na ogled do 19. 9. 2020, od ponedeljka do petka v delavnem času Zavoda Novo mesto od 7. do 15. ure in ob vseh prireditvah, ki potekajo v KC Janeza Trdine. Do nadaljnjega velja, da se za obisk oglasijo v tajništvu, saj so prireditveni prostori zaradi varnostnih ukrepov Covid-19 zaprti. Ob obisku veljajo vsi varnostni ukrepi NIJZ.
- A natečajni pogoji
- B natečajna naloga
- C natečajne podloge
- D natečajne priloge
- VO_1sklop datum objave 31.3.2020
- _SEIDLOVA_C_Desni pas
- SEIDLOVA_C_Desni_pas_Varianta_1_06042020
- SEIDLOVA_C_Desni_pas_Varianta_2_06042020
- VO_2sklop, datum objave 10.4.2020
- VO_1.sklop, 2.stopnja, datum objave 21.5.2020
- Zaključno poročilo