Predmet projektnega natečaja:
Javni, projektni natečaj za izbiro strokovno najprimernejše rešitve za POTNIŠKO SREDIŠČE BOHINJSKA BISTRICA – MULTIMODALNO VOZLIŠČE NA ŽELEZNIŠKI POSTAJI.
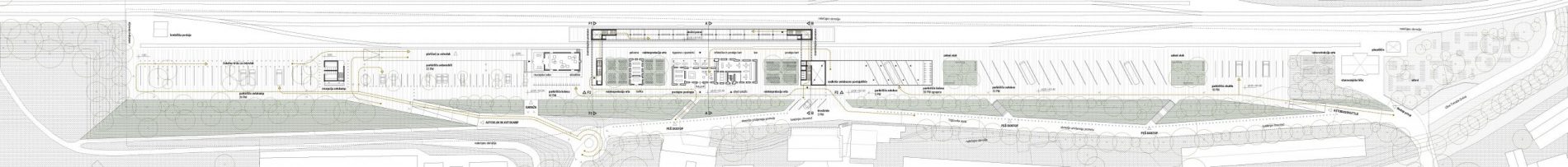
Predmet natečaja je umestitev avtobusne postaje in ureditev vseh prometnih in zunanjih površin, zasnova širšega območja centralne avtobusne in železniške postaje. Vključuje naj tudi parkirišča za osebne avtomobile, avtodome, taksije, shuttle, kolesa ter ureditev dostopa na avtovlak. Novo potniško središče naj poleg ureditev, namenjenih različnim oblikam mobilnosti, vsebuje pokrito čakalnico, trgovsko gostinski program ter turistično informacijsko točko. Predlog naj prav tako vsebuje idejno rešitev vseh zunanjih površin z zasnovo urbane opreme in predlog ureditve Triglavske ulice znotraj natečajnega območja.
Naročnik: Občina Bohinj
Rok oddaje: 23. 9. 2021 do 16.00
Povezava na Portal JN
1. nagrada 6.000 EUR
2. nagrada 4.800 EUR
3. nagrada 3.600 EUR
tri priznanja po 1.800 EUR
deset odškodnin po 800 EUR
Skupni znesek nagradnega sklada je: 19.800 EUR.
Skupni znesek odškodninskega sklada je: 8.000 EUR.
V primeru, da bo podeljenih več kot 10 odškodnin, se znesek posamezne odškodnine ustrezno zniža.
Vsi navedeni zneski so v bruto bruto vrednostih.
Za dodatne informacije in vprašanja o natečaju lahko ponudniki posredujejo vprašanja preko Portala javnih naročil tako, da izberejo možnost “Pošlji vprašanje naročniku”. Naročnik bo odgovore na vprašanja objavil na Portalu javnih naročil v skladu z določenimi roki.
OCENJEVALNA KOMISIJA
Predsednik ocenjevalne komisije (ZAPS):
Primož Hočevar, univ. dipl. inž. arh.
Namestnica predsednika ocenjevalne komisije (naročnik):
Nataša Pavlin, univ. dipl. inž. arh.
Članica (naročnik):
Darinka Maraž Kikelj, univ. dipl. geog.
Članica (naročnik):
mag. Suzana Habjanič Gorše, univ. dipl. inž. pom.
Članica (ZAPS):
dr. Petra Vertelj Nared, univ. dipl. inž. kraj. arh.
Namestnica članov (ZAPS):
Mima Suhadolc, univ. dipl. inž. arh.
Namestnik članov (naročnik):
Klemen Langus, univ. dipl. zgod.
Poročevalka A:
Mia Crnič, univ. dipl. inž. arh.
Poročevalec KA:
Janez Dolinar, univ. dipl. inž. kraj. arh.
Izvedenec za promet:
mag. Andrej Cvar, univ. dipl. inž. grad.
Izvedenka za varstvo kulturne dediščine:
Nataša Ülen, univ. dipl. inž. arh., konservatorka
Skrbnica:
Katja Ševerkar, mag. inž. arh.
Vabilo na razstavo
Otvoritev razstave bo v petek 9. 9. 2022 ob 17.00 uri v Kulturnem domu Joža Ažmana, Triglavska cesta 16, Bohinjska Bistrica. Razstava je na ogled vsak dan, od 9. 9. do 30. 9. 2022, med 8. in 20. uro.
Vljudno vabljeni.