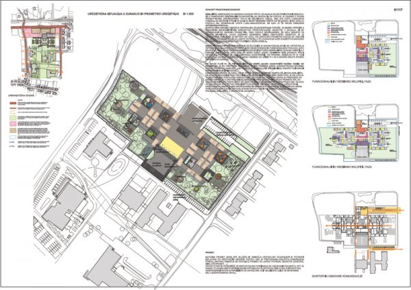
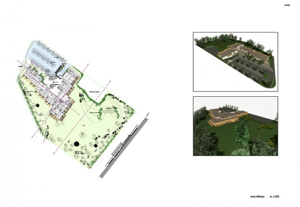
Predmet projektnega natečaja:
Javni, projektni, odprti, anonimni, enostopenjski, arhitekturni natečaj za izbiro strokovno najprimernejše rešitve za Vrtec v Ribnici.
Naročnik: Občina Ribnica
Rok oddaje: 20.11.2009 23:59:59
Zaključno poročilo komisije: 12.12.2009 00:00:00
OCENJEVALNA KOMISIJA
Predsednik ocenjevalne komisije
Milan TOMAC, univ. dipl. inž. arh., imenovan s strani ZAPS
Namestnica predsednika ocenjevalne komisije
Izr. prof. dr. Martina Zbašnik Senegačnik, univ. dipl. ing. arh., imenovana s
strani naročnika
Člani
Boris Volk, univ. dipl. inž. arh., imenovan s strani ZAPS
Andreja Hojč, univ. dipl. soc. ped., imenovana s strani naročnika
Lea Divjak Radivojević, univ. dipl. kraj. arh., imenovana s strani naročnika
Namestnika članov
Janez Zobec, univ. dipl. inž. arh., imenovan s strani naročnika
Ajda Vogelnik Saje, univ. dipl. inž. arh., imenovana s strani ZAPS
Poročevalke
Dunja Šutanovac, univ. dipl. inž. arh., imenovana s strani ZAPS
Dodatno imenovane poročevalke zaradi velikega števila natečajnih
elaboratov
Mika Cimolini, univ. dipl. inž. arh., imenovana s strani ZAPS
Gaja Trbižan, univ. dipl. kraj. arh., imenovana s strani ZAPS
Skrbnica natečaja
mag. Jana Habjan Piletič, univ. dipl. prav., imenovana s strani naročnika