Predmet projektnega natečaja
Predmet natečaja: Javni, projektni, enostopenjski natečaj za izbiro strokovno najprimernejše rešitve za Dozidava Biotehniške fakultete (UL).
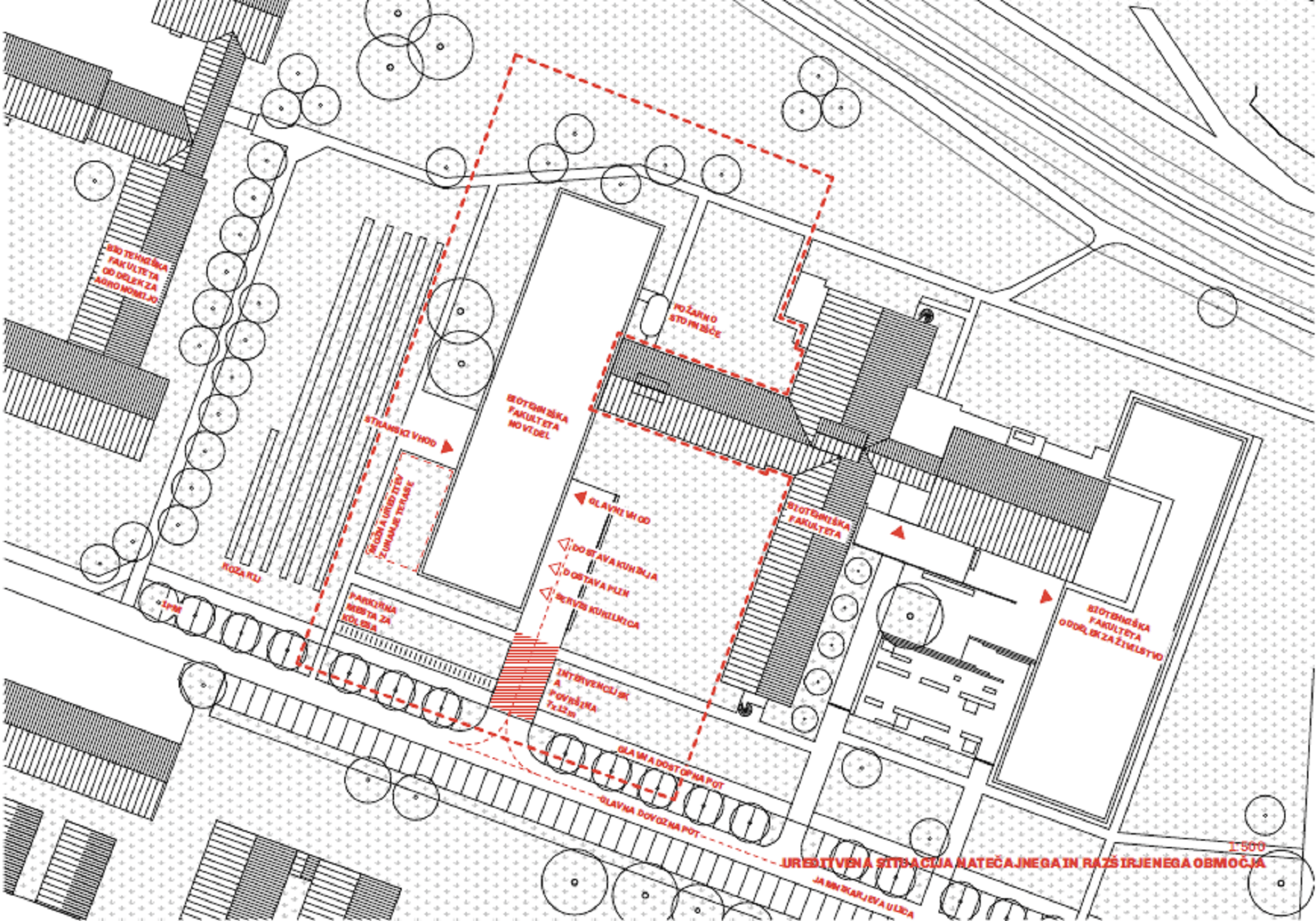
Predmet natečaja je gradnja novega samostojnega prizidka za raziskovalno razvojne programe Biotehniške fakultete Oddelek za živilstvo z zunanjo ureditvijo in celovita zunanja ureditev natečajnega območja.
Naročnik: Univerza v Ljubljani, Biotehniška fakulteta
Rok oddaje: 20.01.2022
Povezava na Portal JN
Podatki o nagradnem skladu, priznanjih in odškodninah
1. nagrada 11.200 EUR
2. nagrada 8.960 EUR
3. nagrada 6.720 EUR
tri priznanja po 3.360 EUR
osem odškodnin po 1.000 EUR
Skupni znesek odškodninskega sklada je: 8.000 EUR.
V primeru, da bo podeljenih več kot 8 odškodnin, se znesek posamezne odškodnine ustrezno zniža.
Vsi navedeni zneski so v bruto bruto vrednostih.
Dodatne informacije in vprašanja
Za dodatne informacije in vprašanja o natečaju lahko ponudniki posredujejo vprašanja preko Portala javnih naročil tako, da izberejo možnost “Pošlji vprašanje naročniku”. Naročnik bo odgovore na vprašanja objavil na Portalu javnih naročil v skladu z določenimi roki.
DOKUMENTACIJA
OCENJEVALNA KOMISIJA
Predsednik ocenjevalne komisije (ZAPS):
Mitja Zorc, univ. dipl. inž. arh.
Namestnica predsednika ocenjevalne komisije (naročnik):
prof. dr. Nataša Poklar Ulrih, dekanja
Član (ZAPS):
dr. Jernej Markelj, mag. inž. arh.
Član (naročnik):
Boris Briški, univ. dipl. inž. arh.
Članica (naročnik):
mag. Polona Filipič, univ. dipl. inž. arh.
Namestnica članov (ZAPS):
Tanja Paulin, mag. inž. arh.
Namestnica članov (naročnik):
Darja Matjašec, univ. dipl. inž. kraj. arh.
Poročevalec A:
Andrej Mlakar, univ. dipl. inž. arh.
Izvedenka za tehnologijo:
Marja Konečnik, univ. dipl. inž. arh.
Izvedenec za investicijo:
Robert Pangršič
Skrbnica natečaja:
Veronika Ščetinin, univ. dipl. inž. arh.
Predhodno izdelano gradivo
Sporočilo za javnost št. 1
Na vpogled je predhodno izdelano idejno gradivo IDZ za BIOTEHNIČNO FAKULTETO, Objekt B, IDZ, november 2020, avtorjev Arhitektura Krušec: prof. mag. Tomaž Krušec, univ.dipl.inž.arh., Lena Krušec, univ.dipl.inž.arh., Vid Kurinčič, univ.dipl.inž.arh., Jurij Nemec, univ.dipl.inž.arh., Neža Novak, m.i.a..
Nov rok oddaje 3. 2. 2022
Sporočilo za javnost št. 3
Rok za oddajo natečajno ponudbene dokumentacije se podaljša in sicer:
- natečajno ponudbena dokumentacija mora prispeti najpozneje do četrtka, 3. 2. 2022, do 16.00 ure.
Podaljšajo se tudi preostali roki in sicer:
Rok za postavljanje vsebinskih vprašanj 29. 12. 2021
Rok za odgovore na vsebinska vprašanja 5. 1. 2022
Rok za postavljanje formalnih vprašanj 24. 1. 2022
Rok za odgovore na formalna vprašanja 26. 1. 2022
Dopolnitev priloge AVTOR in pravnega varstva
Sporočilo za javnost št. 2
Dopolnitev priloge AVTOR in pravnega varstva
1. Priloga AVTOR se dopolni v 3. točki in se v dopolnjenem čistopisu glasi:
3. IZJAVLJAMO, da:
se izrecno strinjamo, da se v primeru podelitve nagrade znesek izplača gospodarskemu subjektu,
se izrecno strinjamo, da se v primeru podelitve priznanja ali odškodnine znesek izplača izbranemu poslovnemu subjektu (ki ni nujno enak gospodarskemu subjektu) in sicer: _____________________________ (naziv, sedež, davčna številka),
naj naročnik naše datoteke v *.dwg oz. *.dxf formatu obravnava kot poslovno skrivnost,
se izrecno strinjamo z javno predstavitvijo in publiciranjem natečajnih elaboratov (na razstavah, na spletnih straneh in publikacijah naročnika in ZAPS ter v strokovnih in drugih medijih).
Dopolnjena priloga AVTOR je objavljena na spletni strani ZAPS v razdelku DOKUMENTI. Natečajnike prosimo, da ob oddaji elaboratov priložijo dopolnjeno prilogo AVTOR-DOP, pri čemer oddaja izvirne različice priloge ne pomeni kršitve razpisnih pogojev in nima nobenih pravnih posledic za natečajnike.
2. Prvi odstavek poglavja 4.19. natečajnih pogojev z naslovom Pravno varstvo se dopolni in se v čistopisu glasi:
Vpogled in zahtevek za revizijo potekata izključno po postopku, kot ga predpisuje Zakon o pravnem varstvu v postopkih javnega naročanja (v nadaljevanju ZPVPJN) in ZJN-3. Zahtevek za revizijo lahko vloži v skladu z veljavnim ZPVPJN vsaka oseba, ki ji je priznana aktivna legitimacija iz 14. člena ZPVPJN.
Vabilo na razstavo
Otvoritev razstave bo v sredo, 30.3.2022 ob 16.00 uri v avli dekanata Biotehnične fakultete.
Razstava bo na ogled vsak delovni dan do 15.4.2022 med 7.00 in 18.00 uro.
Vljudno vabljeni.