Predmet projektnega natečaja:
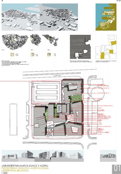
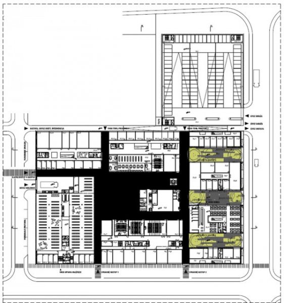
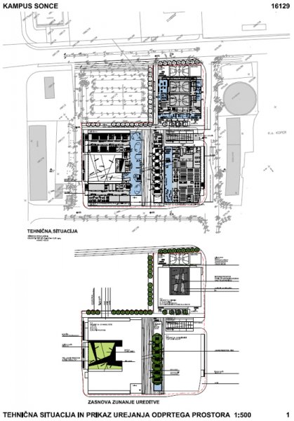
Javni, projektni, odprti, anonimni, enostopenjski, arhitekturni natečaj za izbiro strokovno najprimernejše rešitve in za izbiro izvajalca za izdelavo projektne dokumentacije za izdelavo objekta in zunanjo ureditev za Univerzitetni kampus Sonce v Kopru, območje urejanja na parc. št. 1567/33, k.o. Koper.
Naročnik: Univerza na Primorskem, Universita del litorale
Rok oddaje: 2010-01-28 23:59:59
Zaključno poročilo komisije: 2010-01-28 00:00:00
OCENJEVALNA KOMISIJA
Predsednik
prof. dr. Aleš Vodopivec, univ. dipl. inž. arh.
Namestnica predsednika
Astrid Prašnikar, univ. dipl. prav.
Člani:
Miha Dešman, univ. dipl. inž. arh.
prof. dr. Davorin Gazvoda, univ. dipl. inž. kraj. arh.
Jana Gojanović Purger, univ. dipl. inž. arh.
Janja Sever, univ.dipl.inž.arh.
Vanda Rode, univ.dipl. soc.
Branka Arnautović, univ. dipl. inž. arh.
mag. Elizabeta Zirnstein, univ. dipl. prav.
Namestniki članov
doc. dr. Ilka Čerpes, univ. dipl. inž. arh.
Tanja Marsič, univ. dipl. prav.
Viljan Tončič, univ. dipl. inž. grad.
Poročevalca za arhitekturo
Klemen Vodnik, univ. dipl. inž. arh.
Larisa Bertok, univ. dipl. inž. arh.
Poročevalec za krajinsko arhitekturo
Sergej Hiti, univ. dipl. inž. kraj. arh.
Izvedenka za učinkovito rabo energije
dr. Marjana Šijanec Zavrl, univ. dipl. inž. grad.
Izvedenec za promet
Arno Rupnik, univ. dipl. inž. grad.
Skrbnik natečaja
Edmond Mahnič, univ. dipl. inž. grad.
Vabilo na razstavo
Univerza na Primorskem v sodelovanju z Zbornico za arhitekturo in prostor Slovenije vabita na otvoritev razstave natečajnih rešitev za UNIVERZITETNI KAMPUS SONCE, ki bo v petek, 12.2.2010, ob 11:00 uri v prostorih Armerije na Titovem trgu v Kopru.
Razstava bo odprta do vključno 26.2.2010, vsak delovni dan med 9:00 in 15:30 uro.
Vabljeni!
Vabilo na otvoritev razstave natečajnih rešitev
Univerza na Primorskem v sodelovanju z Zbornico za arhitekturo in prostor Slovenije vabita na otvoritev razstave natečajnih rešitev za UNIVERZITETNI KAMPUS SONCE, ki bo v četrtek, 8.4.2010, ob 17:00 uri v Hiši arhitekture v Ljubljani. Razstava bo odprta do vključno 16.4.2010, vsak delovni dan med 8:00 in 16:00 uro.
Vabljeni!
Obvestilo za udeležence natečaja
Vsem udeležencem natečaja se zahvaljujemo za sodelovanje in vas prosimo, da v skladu z natečajnimi pogoji do vključno 11.5.2010, v času uradnih ur ZAPS (vsak delavnik med 8.00 in 12.00 uro, razen ob torkih med 12.00 in 16.00 uro) dvignete svoje natečajne elaborate. Da bi mogli pravočasno pripraviti gradivo, ki ga boste prevzeli, prosimo, da predhodno sporočite šifro vašega elaborata ter naziv natečaja z e-sporočilom na naslov barbara.pungercar@zaps.si ali po telefonu v času uradnih ur na št. 01 24 20 672. Po tem datumu gradiva ne bomo več hranili!