Predmet projektnega natečaja:
Predmet razpisanega natečaja
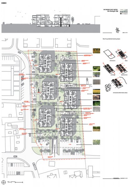
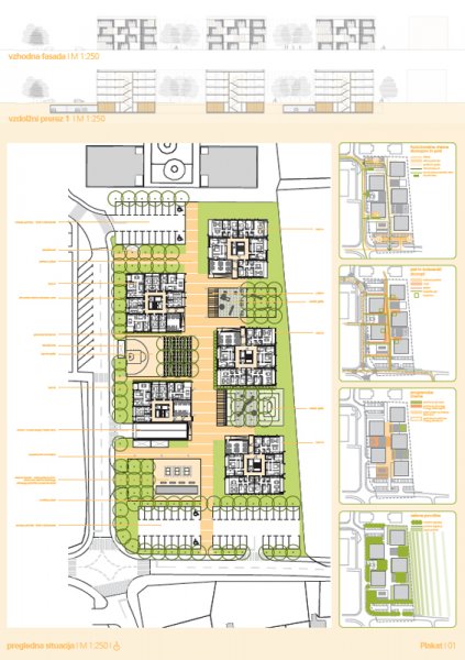
je arhitekturna rešitev za novo gradnjo JSS MOL načrtuje z razpisanim natečajem pridobiti najbolj ustrezno prostorsko in arhitekturno rešitev za gradnjo stanovanjskega kompleksa Polje III. Območje urejanja (EUP PO-218) se nahaja na skrajnem vzhodnem delu mesta Ljubljane, v Polju, kje so bile v zadnjih desetih letih v neposredni bližini zgrajene tri manjše stanovanjske soseske: soseska RUDIS ob Zadobrovški cesti ter dve soseski JSS MOL: POLJE I in POLJE II. Tako so najnovejše stanovanjske urbanizacije, vključno s stavbo policijske postaje, banke, pošte in šole, postopoma zbrisale videz zaselka, vasi Polje.
Naročnik: Javni stanovanjski sklad Mestne občine Ljubljana
Rok oddaje: 15.6.2012 00:00:00
Zaključno poročilo komisije: 06.07.2012 00:00:00
OCENJEVALNA KOMISIJA
Predsednik:
Tadej ŽAUCER, univ.dipl.inž.arh.
Namestnica predsednika:
Jožka HEGLER, univ.dipl.inž.arh.
Člani:
Samo GROLEGER, univ.dipl.inž.arh.
Tina GREGORIČ, univ.dipl.inž.arh.
Tonka GRGIČ, univ.dipl.inž.arh.
Nadja PFEIFER, univ.dipl.inž.arh.
Karmen PINTAR OBLAK, univ.dipl.prav.
Namestnika članov:
mag. Ina ŠUKLJE ERJAVEC, univ.dipl.inž.kraj.arh.
Aleš TOMAŽIN, univ.dipl.prav.
Poročevalca:
Tomaž EBENŠPANGER, univ.dipl.inž.arh., za arhitekturo
Mojca BALANT, univ.dipl.inž.kraj.arh., za krajinsko arhitekturo
Skrbnik natečaja:
Gregor ČOK, univ.dipl.inž.arh.
Sporočilo za natečajnike 2
Objavljamo sklep o zaključku natečaja.
Vabilo na razstavo
Javni stanovanjski sklad Mestne občine Ljubljana in Mestna občina Ljubljana z Zbornico za arhitekturo in prostor Slovenije vabijo na otvoritev razstave natečajnih rešitev. Otvoritev bo v torek, 18.9.2012, ob 12.00 uri v Hiši arhitekture (ZAPS), Vegova ulica 8, Ljubljana. Razstava bo odprta do vključno 2.10.2012, vsak delovni dan od 8.00 do 16.00 ure. Vabljeni!
Sporočilo za natečajnike 1
Natečajnike obveščamo, da v skladu z rezultati natečaja v zaključenem poročilu pošljejo na naš naslov avtorske pogodbe z vsemi v pogodbi navedenimi prilogam.