Predmet projektnega natečaja:
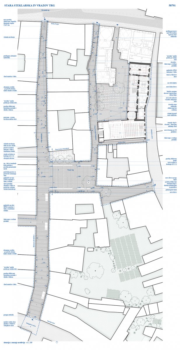
Odprti, enostopenjski, projektni natečaj za izbiro strokovno najprimernejše rešitve za: REVITALIZACIJO STARE STEKLARSKE IN VRAZOVEGA TRGA S PRIPADAJOČIMI ULICAMI
Predmet projektnega natečaja
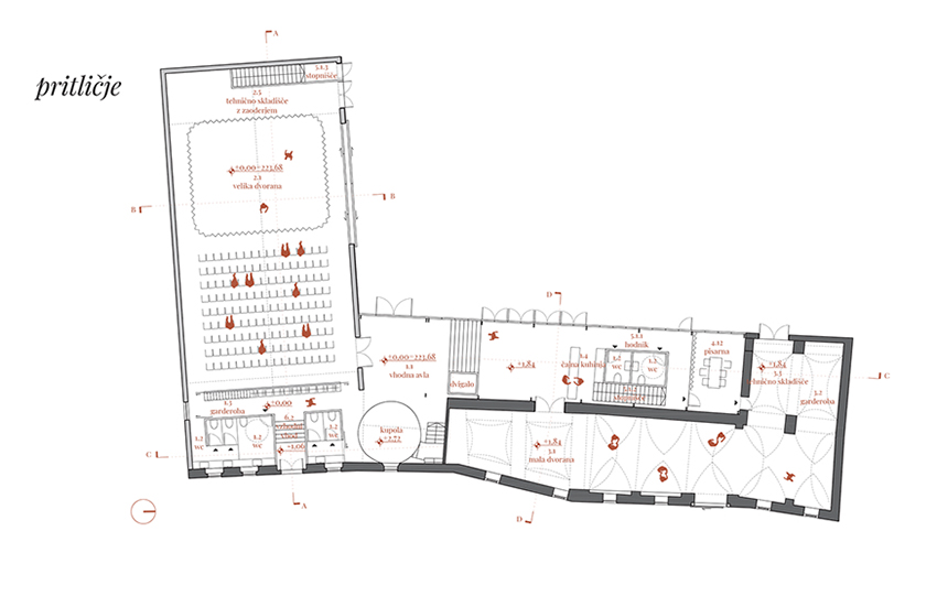
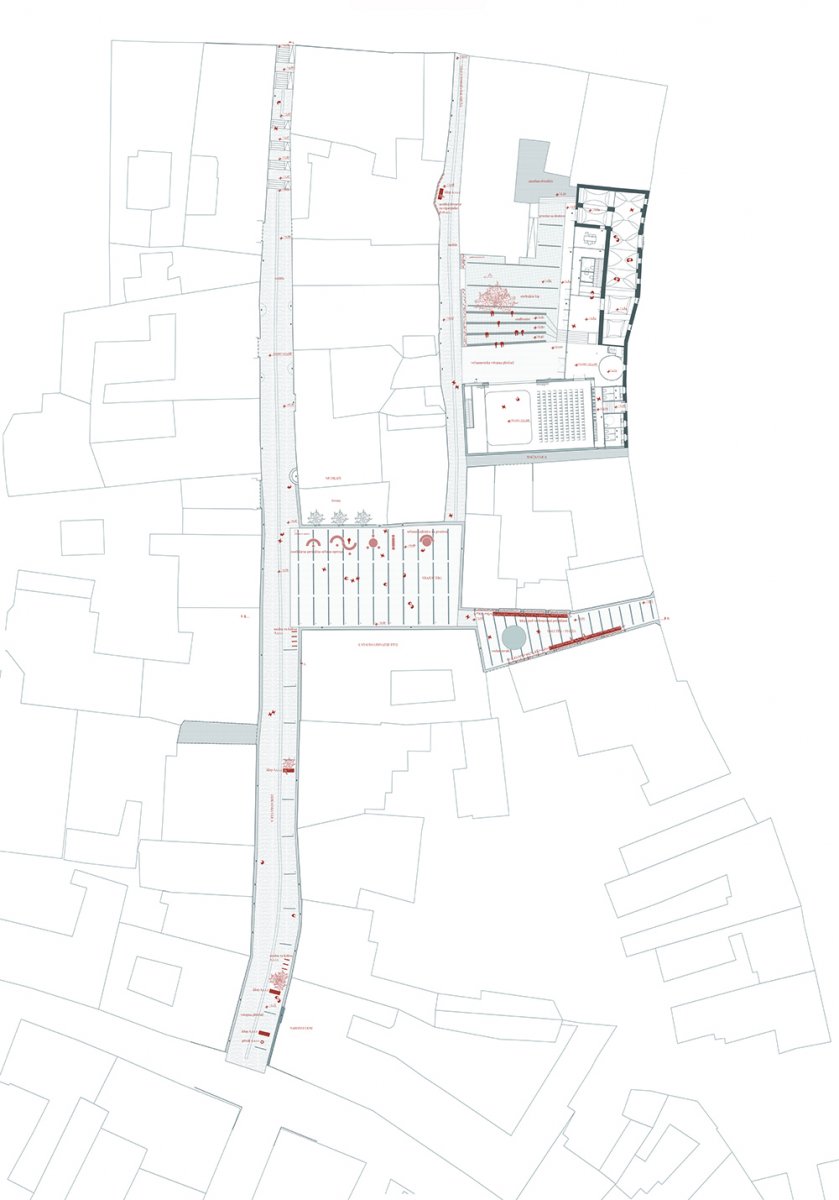
Z natečajem se išče rešitve za dve različni, a tesno povezani gradnji – za ureditev javnih površin ulic in Vrazovega trga ter prenovo in novogradnjo kulturno-umetniškega središča Stara steklarska. Z obema posegoma se bo obnovilo in oživelo večplastno urbano in arhitekturno dediščino. Poleg varstva kulturne dediščine povezuje obe novi ureditvi še temi spodbujanja kulturno-umetniškega ustvarjanja in javnega dostopa ter udejstvovanja v njem.
Naročnik: Mestna občina Ptuj
Rok oddaje: 19.12.2019
Zaključno poročilo komisije: 22.1.2020
Povezava na Portal JN
Za dodatne informacije in vprašanja o natečaju lahko ponudniki posredujejo vprašanja preko Portala javnih naročil tako, da izberejo možnost “Pošlji vprašanje naročniku“. Naročnik bo odgovore na vprašanja objavil na Portalu javnih naročil v skladu z določenimi roki.
OCENJEVALNA KOMISIJA
Predsednica ocenjevalne komisije (ZAPS):
prof. Maruša Zorec, univ.dipl.inž.arh.
Namestnik predsednice ocenjevalne komisije (naročnik):
Aleksander Ostan, univ.dipl.inž.arh.
Članica (naročnik):
Nuška Gajšek, županja
Članica (naročnik):
Snežana Sešel, univ.dipl.inž.arh.
Član (ZAPS):
Marjan Zupanc, univ.dipl.inž.arh.
Namestnica članov (naročnik):
Mojca Brunčič, univ.dipl.inž.grad.
Namestnik članov (ZAPS):
Boris Matić, mag. inž.arh.
Poročevalec A:
Blaž Babnik Romaniuk, mag. inž.arh.
Izvedenka ZVKD:
dr. Simona Menoni Muršič, univ.dipl.um.zgod.
Izvedenec GOI:
Robert Pangršič, grad.teh.
Naknadno imenovan izvedenc za GOI:
Primož Kunstič, univ. dipl. inž. grad.
Izvedenka za programske vsebine:
Branka Bezeljak, univ.dipl.slavistka
Skrbnica natečaja:
Dunja Šutanovac, univ. dipl. inž. arh.
Vabilo na razstavo
Otvoritev razstave bo v soboto 8. 2. 2020 ob 17.00 uri v Stari steklarski na Ptuju.
Razstava bo na ogled od 10. do 17. 2. 2020, vsak dan, razen nedelje, od 12. do 18. ure.
Vljudno vabljeni!
Sporočilo za javnost št. 1
Organiziran ogled lokacije bo potekal dne 14.11.2019 ob 10:00. Zbor je na naslovu Mestni trg 1, Ptuj.