Predmet projektnega natečaja
Predmet natečaja: Javni, projektni, enostopenjski natečaj za izbiro strokovno najprimernejše rešitve za Večstanovanjski objekt Dvořakova (stanovanja za mlade in mlade družine Dvořakova ulica, Maribor).
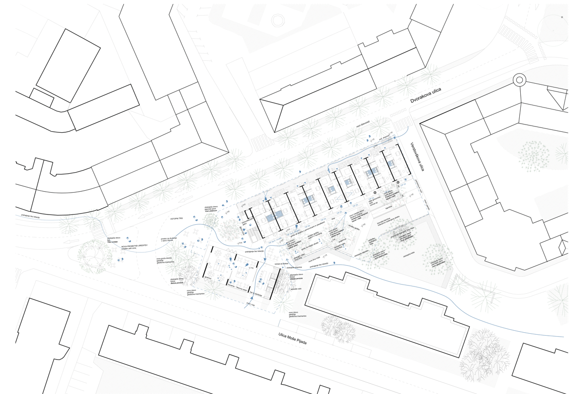
Predmet natečaja je arhitekturna zasnova stanovanjsko objekta Dvořakova (z okolico) ter pridobitev ponudbe za izdelavo projektne dokumentacije za objekt in odprti prostor. Predmet natečaja je tudi urbanistična ureditev območja, ki bo izdelovalcu OPPN podlaga za pripravo odloka.
Naročnik: Javni medobčinski stanovanjski sklad Maribor
Rok oddaje: 20.1.2022
Povezava na Portal JN
Podatki o nagradnem skladu, priznanjih in odškodninah:
2. nagrada 7.200 EUR
3. nagrada 5.400 EUR
tri priznanja po 2.700 EUR
deset odškodnin po 1.000 EUR
Skupni znesek odškodninskega sklada je: 10.000 EUR.
V primeru, da bo podeljenih več kot 10 odškodnin, se znesek posamezne odškodnine ustrezno zniža.
Vsi navedeni zneski so v bruto bruto vrednostih.
Dodatne informacije in vprašanja
Za dodatne informacije in vprašanja o natečaju lahko ponudniki posredujejo vprašanja preko Portala javnih naročil tako, da izberejo možnost “Pošlji vprašanje naročniku”. Naročnik bo odgovore na vprašanja objavil na Portalu javnih naročil v skladu z določenimi roki.
DOKUMENTACIJA
OCENJEVALNA KOMISIJA
Predsednik ocenjevalne komisije (naročnik):
Gregor Reichenberg, univ. dipl. inž. arh., podžupan MOM
Namestnica predsednika ocenjevalne komisije (ZAPS):
Vanja Gregorc Vrhovec, univ. dipl. inž. arh.
Član (naročnik):
dr. Andrej Šmid, univ. dipl. inž. arh.
Članica (naročnik):
Irena Španinger, dipl. ekon., spec.
Član (ZAPS):
Aleksander Lužnik, mag. inž. arh.
Namestnik članov (naročnik):
mag. Tomaž Kancler, univ. dipl. inž. arh.
Namestnik članov (ZAPS):
Jure Hrovat, mag. inž. arh.
Poročevalki A:
mag. Špela Lesnik, univ. dipl. inž. arh.
Mateja Katrašnik, univ. dipl. inž. arh.
Izvedenec za investicijo:
Igor Špolar, univ. dipl. inž. grad.
Skrbnica natečaja:
Dunja Šutanovac, univ. dipl. inž. arh.
Nov rok oddaje 3. 2. 2022
Sporočilo za javnost št. 1:
Rok za oddajo natečajno ponudbene dokumentacije se podaljša in sicer:
- natečajno ponudbena dokumentacija mora prispeti najpozneje do četrtka, 3. 2. 2022, do 16.00 ure.
Podaljšajo se tudi preostali roki in sicer:
Rok za postavljanje vsebinskih vprašanj 29. 12. 2021
Rok za odgovore na vsebinska vprašanja 5. 1. 2022
Rok za postavljanje formalnih vprašanj 24. 1. 2022
Rok za odgovore na formalna vprašanja 27. 1. 2022
Dopolnitev priloge AVTOR in pravnega varstva
Sporočilo za javnost št. 2
Dopolnitev priloge AVTOR in pravnega varstva
1. Priloga AVTOR se dopolni v 3. točki in se v dopolnjenem čistopisu glasi:
3. IZJAVLJAMO, da:
se izrecno strinjamo, da se v primeru podelitve nagrade znesek izplača gospodarskemu subjektu,
se izrecno strinjamo, da se v primeru podelitve priznanja ali odškodnine znesek izplača izbranemu poslovnemu subjektu (ki ni nujno enak gospodarskemu subjektu) in sicer: _____________________________ (naziv, sedež, davčna številka),
naj naročnik naše datoteke v *.dwg oz. *.dxf formatu obravnava kot poslovno skrivnost,
se izrecno strinjamo z javno predstavitvijo in publiciranjem natečajnih elaboratov (na razstavah, na spletnih straneh in publikacijah naročnika in ZAPS ter v strokovnih in drugih medijih).
Dopolnjena priloga AVTOR je objavljena na spletni strani ZAPS v razdelku DOKUMENTI. Natečajnike prosimo, da ob oddaji elaboratov priložijo dopolnjeno prilogo AVTOR-DOP, pri čemer oddaja izvirne različice priloge ne pomeni kršitve razpisnih pogojev in nima nobenih pravnih posledic za natečajnike.
2. Prvi odstavek poglavja 4.19. natečajnih pogojev z naslovom Pravno varstvo se dopolni in se v čistopisu glasi:
Vpogled in zahtevek za revizijo potekata izključno po postopku, kot ga predpisuje Zakon o pravnem varstvu v postopkih javnega naročanja (v nadaljevanju ZPVPJN) in ZJN-3. Zahtevek za revizijo lahko vloži v skladu z veljavnim ZPVPJN vsaka oseba, ki ji je priznana aktivna legitimacija iz 14. člena ZPVPJN.
Vabilo na razstavo
Otvoritev razstave bo v torek, 5. 4. 2022 ob 17.00 uri v v Vodnem stolpu, Usnjarska ulica 10, Maribor.
Razstava bo na ogled vsak delovni dan do 20.4.2022 med 10.00 in 17.00 uro.
Vabilo
Vljudno vabljeni.