Predmet projektnega natečaja:
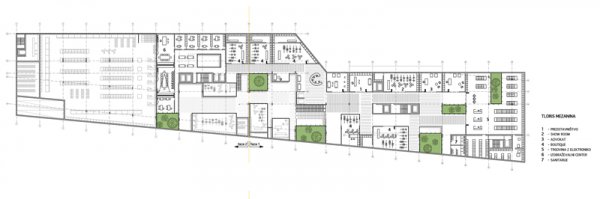
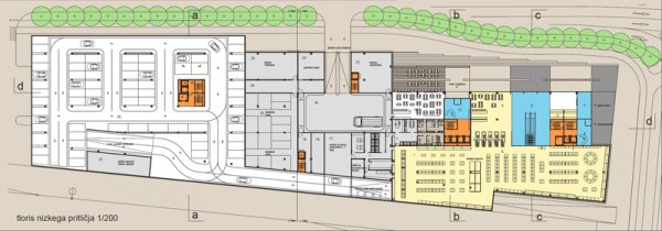
Javni, odprti, vabljeni, projektni, arhitekturni natečaj za izbiro strokovno najprimernejše rešitve za poslovno stanovanjski kompleks Vilharjeva v Ljubljani ter za izbiro izvajalca za izdelavo projektne in tehnične dokumentacije.
Naročnik: TRIDANA d.o.o.
Rok oddaje: 17.09.2007 14:51:08
Zaključno poročilo komisije: 07.11.2007 00:00:00
OCENJEVALNA KOMISIJA
predsednik:
Igor JURANČIČ, univ.dipl.inž.arh.
namestnik predsednika:
Boštjan VUGA, univ.dipl.ing.arh. Grad Dip (AA)
člani:
Maruša ZOREC, univ.dipl.inž.arh.
Rok Žnidaršič, univ.dipl.inž.arh.
Radoš LIPANJE, univ.dipl.inž.grad.
Zoran MADON, univ.dipl.iur.
Rudi GRAHEK univ.dipl.inž.stroj.
nadomestna člana:
Milan TOMAC, univ.dipl.inž.arh.
mag. Tina JELENC, univ.dipl.inž. arh.
poročevalec natečaja:
Milan ČREPINŠEK, univ.dipl.inž.grad.
skrbnik natečaja:
Gregor ČOK, univ.dipl.inž.arh.