Predmet projektnega natečaja:
Javni, projektni, odprti, anonimni, enostopenjski, arhitekturni natečaj za izbiro strokovno najprimernejše rešitve za objekt MEDPODJETNIŠKI IZOBRAŽEVALNI CENTER V NOVI GORICI (MIC NG)
Predmet razpisanega natečaja:
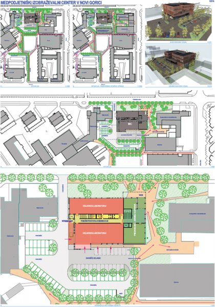
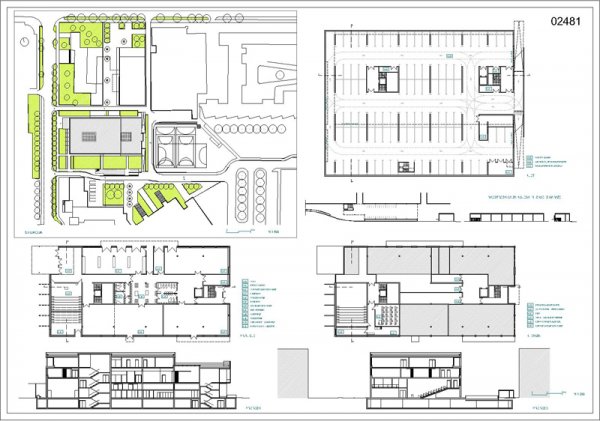
Predmet razpisanega arhitekturno urbanističnega natečaja in vsebina naloge je novogradnja Medpodjetniškega izobraževalnega centra v Novi Gorici. Udeleženci natečaja naj s predlagano natečajno rešitvijo v okviru veljavnih standardov in normativov zagotovijo UPORABNIKOM teoretičnih, raziskovalnih in praktičnih izobraževalnih programov in PREDAVATELJEM TER MENTORJEM prijetno, funkcionalno, kakovostno, energetsko varčno stavbo. Prednost bodo imele rešitve, ki bodo optimalno udejanjile naslednja izhodišča:
- optimalna izraba omejenih prostorskih možnosti na izbrani lokaciji,
- oplemenitile in nadgradile urbanistične in arhitekturne značilnosti območja, ki izhajajo iz specifičnih reliefnih, klimatskih, ekoloških in kulturnih značilnosti mesta,
- zagotovile varstvo pred naravnimi in drugimi nesrečami,
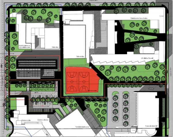
- z ustrezno prostorsko zasnovo zagotovile funkcionalno povezanost novega objekta z obstoječimi in predvidenim programi in objekti v območju,
- z ustreznimi zaščitami zagotovile varstvo pred hrupom,
- z ustrezno zasnovo zunanje ureditve zagotovile ustrezne pogoje in prostor za zadrževanje obiskovalcev na ustrezno urejenem trgu ali ploščadi med objekti TŠC,
- zagotovile najboljšo izrabo razpoložljivih zunanjih površin,
- zagotovile energetsko učinkovitost objekta,
- uporaba obnovljivih virov energije,
- zagotovile funkcionalnost objekta, ki omogoča najkrajše povezave med učilnicami, laboratoriji in delavnicami ob ustrezni fleksibilnost objekta, ki omogoča morebitne kasnejše razširitve in navezave ter prilagajanje novim potrebam.
Naročnik: Tehniški šolski center Nova Gorica v sodelovanju z ZAPS
Rok oddaje: 24.05.2010 00:00:00
Zaključno poročilo komisije: 08.06.2010 00:00:00
OCENJEVALNA KOMISIJA
Predsednik
Vladimir FILIPIČ, univ.dipl.inž.arh.
Namestnik predsednika
Niko JURCA, univ.dipl.inž.arh.
Člani
prof. mag. Peter GABRIJELČIČ, univ.dipl.inž.arh.
Egon PIPAN, univ.dipl.inž.el.
Peter VELIKONJA, dipl.ekon. in prav.
Namestnika članov
Klemen PAVLIN, univ.dipl.inž.arh.
Adrijana HODAK, prof.nem.
Poročevalec
Emil BRATINA, univ.dipl.inž.arh.
Skrbnica natečaja
Ingrid ŠIRCELJ, univ.dipl.inž.arh.
Vabilo na razstavo
Tehnični šolski center Nova Gorica z Zbornico za arhitekturo in prostor Slovenije vabita na otvoritev razstave natečajnih rešitev za MIC (Medpodjetniški izobraževalni center v Novi Gorici), ki bo v ponedeljek, 21.6.2010, ob 13:00 uri v avli Tehniškega šolskega centra, Erjavčeva 4a, Nova Gorica. Razstava bo odprta 14 dni, vsak delovni dan med 8:00 in 19:00. Vabljeni!