Predmet projektnega natečaja:
Javni, projektni, enostopenjski natečaj za izbiro strokovno najprimernejše rešitve za VRTEC V BOHINJSKI BISTRICI.
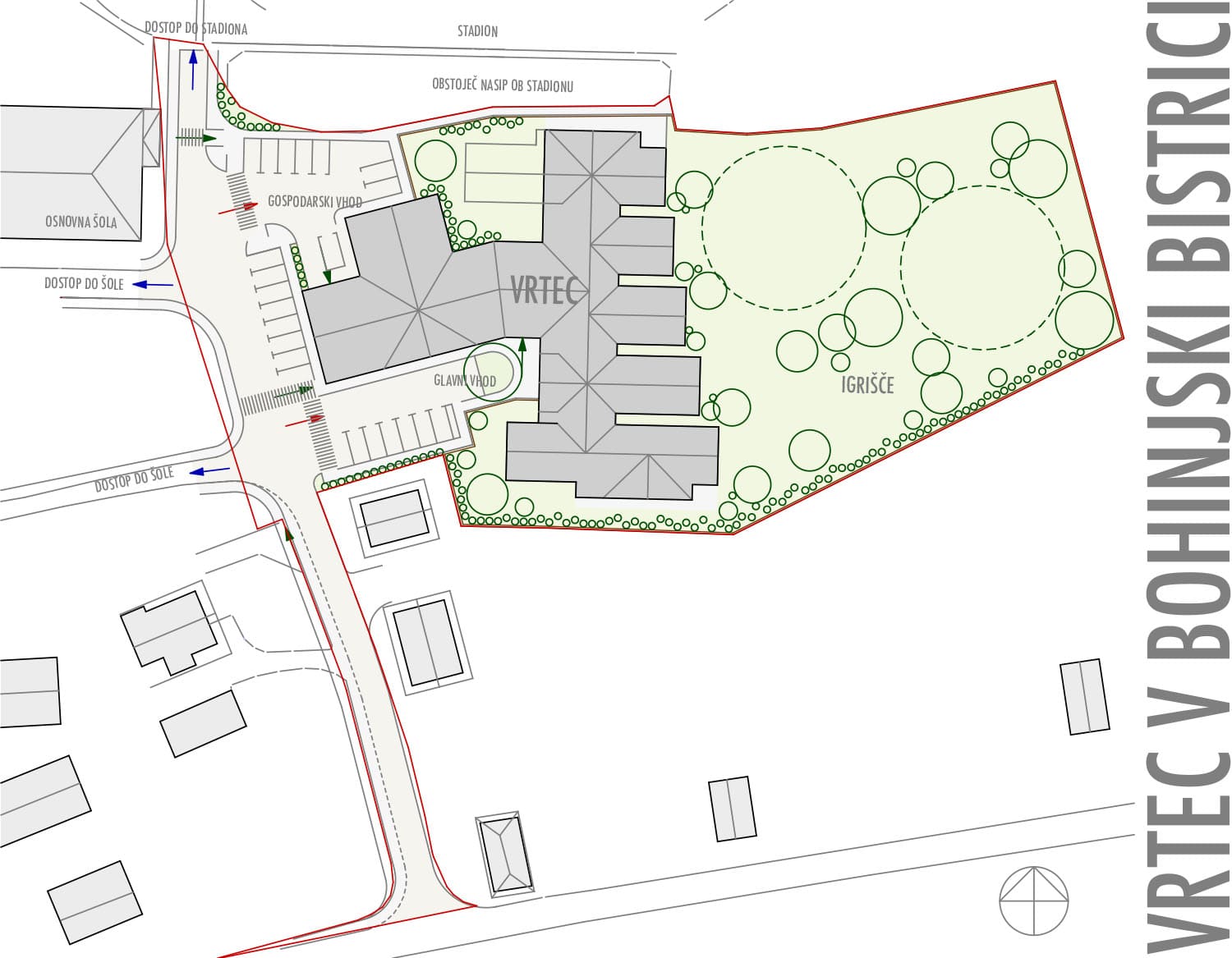
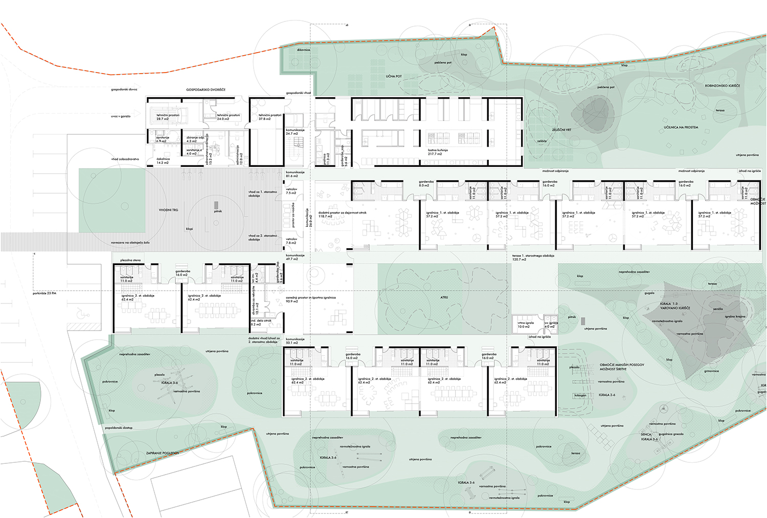
Naročnik Občina Bohinj načrtuje gradnjo novega samostojnega vrtca z 11 oddelki ter vsemi potrebnimi pripadajočimi prostori ter zunanjo ureditvijo vključno z dostopom.
Cilj natečaja je, da občina zgradi objekt, ki bo zagotovil ustrezne prostore vrtca, ki bo rešil prostorske težave v obstoječem vrtcu ter zagotovil po velikosti in namenu ustrezne prostore ter objekt na ustrezni izbrani lokaciji.
Investitor pričakuje umestitev objekta na planirani lokaciji tako, da bo le ta doprinesel k urejanju podobe Bohinjske Bistrice, vključno z izboljšanjem prometne infrastrukture v območju bodočega vrtca (dovoz, dostop, parkiranje, …), hkrati pa pričakuje objekt s prostori, ki bodo po velikosti in drugih značilnostih skladni z normativi, obenem pa bodo zagotavljali spodbudno in prijetno bivalno okolje za otroke in vzgojitelje.
Naročnik: Občina Bohinj
Rok oddaje: 21. 05. 2020
Zaključno poročilo komisije: 03. 07. 2020
Povezava na Portal JN
Za dodatne informacije in vprašanja o natečaju lahko ponudniki posredujejo vprašanja preko Portala javnih naročil tako, da izberejo možnost Pošlji vprašanje naročniku. Naročnik bo odgovore na vprašanja objavil na Portalu javnih naročil v skladu z določenimi roki.
OCENJEVALNA KOMISIJA
Predsednik ocenjevalne komisije (ZAPS):
Robert POTOKAR, univ. dipl. inž. arh.
Namestnik predsednika ocenjevalne komisije (naročnik):
Aleksander Saša OSTAN, univ. dipl. inž. arh.
Članica (naročnik):
Mojca ROZMAN, ravnateljica OŠ
Član (naročnik):
Andrej KOVAČIČ, dipl. inž. geod., višji svetovalec
Članica (ZAPS):
Damjana ZAVIRŠEK HUDNIK, univ. dipl. inž. arh.
Namestnica članov (naročnik):
Monika RAVNIK, dipl. inž. živ., podžupanja
Namestnik članov (ZAPS):
Zaš BREZAR, univ. dipl. inž. kraj. arh.
Poročevalec A:
Jože JAKI, univ. dipl. inž. arh.
Urša Vrhunc, univ. dipl. inž. arh.
Poročevalka KA:
Nika CIGOJ SITAR, univ. dipl. inž. kraj. arh.
Urška KRANJC, univ. dipl. inž. kraj. arh.
Izvedenec GOI:
Robert PANGRŠIČ
Skrbnica natečaja:
Sandra BANFI ŠKRBEC, univ. dipl. inž. arh.
Vabilo na razstavo
Otvoritev razstave bo v ponedeljek 24. 8. 2020 ob 18.00 uri v Kulturnem domu Joža Ažmana, Triglavska cesta 16, Bohinjska Bistrica.
Vljudno vabljeni.
Sporočilo za javnost št. 2
Rok za oddajo natečajno ponudbene dokumentacije za natečaj “Vrtec v Bohinjski Bistrici” je v četrtek 21. 5. 2020 do 16:00 ure. Zaradi sproščanja omejitvenih ukrepov v povezavi z epidemijo COVID-19, ostaja oddaja natečajno ponudbene dokumentacije v tiskani oz. fizični obliki. Natečajno ponudbena dokumentacija mora prispeti najpozneje do predpisanega termina, ne glede na način dostave (osebno, dostavne službe, poštna pošiljka). Elaborate prevzema Zbornica za arhitekturo in prostor Slovenije (ZAPS), na naslovu Vegova 8, 1000 Ljubljana. Za osebno oddajo natečajnega elaborata se je potrebno predhodno najaviti po telefonu na številko 041 751 461. Predhodna najava na dan oddaje 21.5.2020 ni potrebna. Digitalna oddaja natečajno ponudbene dokumentacija ne bo mogoča.
Sporočilo za javnost št. 1
Ogled lokacije natečaja v času veljavnega odloka o začasni splošni prepovedi gibanja in zbiranja ljudi na javnih mestih in površinah v Republiki Sloveniji ter prepovedi gibanja izven občin. V kolikor si natečajniki želijo ogledati lokacijo natečaja, morajo preko kontaktnega naslova poslati zahtevo za izdajo potrdila z navedbo datuma ogleda. Zahteva za izdajo potrdila se pošlje po e-pošti na naslov: natecaji@zaps.si