Predmet projektnega natečaja:
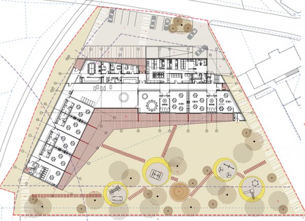
Predmet razpisanega natečaja je pridobiti najustreznejšo arhitekturno rešitev za novogradnjo vrtca Pedenjped v Zgornjem Kašlju, zagotoviti primerne prostorske pogoje, ter celostno urediti zunanje površine in mirujoč promet na območju obdelave. Obenem je cilj natečaja pridobitev izdelovalca projektne dokumentacije za pridobitev gradbenega dovoljenja in samo izgradnjo otroškega vrtca z 8 oddelki, za skupno 176 otrok. Investitorjeva želja je, da udeleženci natečaja s predlagano natečajno rešitvijo v okviru veljavnih standardov in normativov zagotovijo otrokom in vzgojiteljem prijetno, funkcionalno, kakovostno, energetsko varčno in zdravo stavbo vrtca, ki bo izpolnjevala predpisane pogoje za izvajanje predšolske vzgoje. Za potrebe umestitve in izgradnje nove enote vrtca Pedenjped v Zgornjem Kašlju je investitor namenil prostor v skupni velikosti 5.508m2. Obravnavano območje se nahaja v neposredni bližini osnovne šole in ni pozidano, vendar pa je specifično glede oblike in varovalnih pasov. Prav zato je poseben poudarek namenjen umeščenosti načrtovanih objektov znotraj prikazanega območja, ob upoštevanju racionalne izrabe prostora. Del obravnavane lokacije se nahaja neposredno ob železniškem koridorju, čez njo pa poteka tudi trasa koridorja komunalne infrastrukture primarnega značaja. Zaradi danih omejitev bo posebna pozornost namenjena umestitvi v meje območja ki je prikazana v grafičnih podlagah razpisnega gradiva.
Naročnik: Mestna občina Ljubljana
Rok oddaje: 07.02.2013 00:00:00
Zaključno poročilo komisije: 19.03.2013 00:00:00
OCENJEVALNA KOMISIJA
Predsednica:
Milena TODORIČ TOPLIŠEK, univ.dipl.inž.arh.
Namestnik predsednice:
Janez KOŽELJ, univ.dipl.inž.arh.
Člani:
Andreja JUG, univ.dipl.inž.arh.
Sergej HITI, univ.dipl.inž.kraj.arh
Mojca KITEK RUPARČIČ, univ.dipl.inž.arh.
Irena BEZGOVŠEK, univ.dipl.ekon.
Marko POTISEK, univ.dipl.inž.arh.
Namestnika članov:
Jože PETERKOČ, univ.dipl.inž.arh.
Marjana ZUPANČIČ, spec.
Poročevalki:
Mima SUHADOLC, univ.dipl.inž.arh.
Urška KRANJC, univ.dipl.inž.kraj.arh.
Skrbnica natečaja:
Marinka ŠKRILEC LUKAČ, univ.dipl.inž.arh.
Sporočilo za javnost
Dne 2. 4. 2013 je na naslov ZAPS prispela pritožba, ki zaradi anonimnosti ni izpolnjevala pogoja aktivne legitimacije in zato ni bila obravnavana.
Obrazložitev: V Natečajnih pogojih je v drugem odstavku poglavja 4.8 (Ugovori na vsebinske odločitve in zahtevek za revizijo) določeno: »Dodatno obrazložitev lahko zahtevajo le tisti avtorji, ki so bili pripuščeni v ocenjevanje. Morebitni ugovori – zahteve za dodatno obrazložitev se lahko nanašajo le na natečajni postopek ali vsebinske odločitve ocenjevalne komisije v kolikor niso skladne z natečajno nalogo ali v gradivu navedenimi obvezujočimi pogoji.«
Na podlagi podatkov iz pritožbe ni bilo možno ugotoviti, da je pritožba podana s strani strank, ki so upravičene do pritožbe (avtorjev, ki so bili pripuščeni v ocenjevanje) in zato pritožba ni bila obravnavana.
Vabilo na razstavo
Mestna občina Ljubljana z Zbornico za arhitekturo in prostor Slovenije vabita na otvoritev razstave natečajnih rešitev. Otvoritev bo v četrtek, 11. 4. 2013, ob 17.00 uri v osredjem atriju Mestne hiše, Mestni trg 1, Ljubljana.
Razstava bo odprta do vključno 23. 4. 2013, vsak dan od 9.00 do 19.00 ure.
Vabljeni!
- A_B_natecajni_pogoji
- A_B_priloga_1_layout_plakatov
- C_Natecajna naloga
- D_natecajne_podlage
- D_priloga_1_natecajne_podlage_varovalni pasovi
- D_priloga_2_natecajne_podlage_varovalni pasovi
- E_priloga_1_Geomehansko porocilo
- F_odgovori na vsebinska vprasanja
- F_priloga_1_ Pravilnik industrijski tir
- G_odgovori na formalna vprasanja
- H_Zakljucno_porocilo