Predmet projektnega natečaja:
Javni, projektni, odprti, anonimni, enostopenjski, arhitekturni natečaj za izbiro strokovno najprimernejše rešitve za
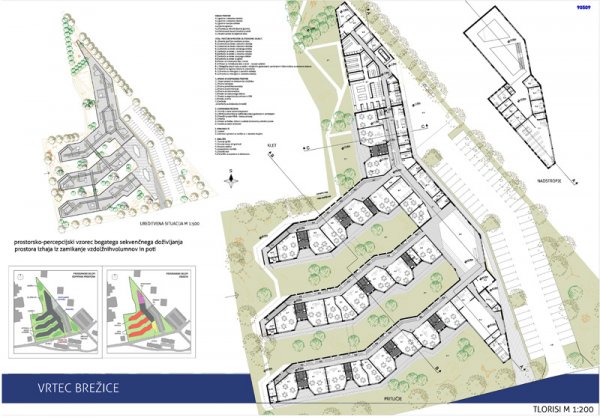
VRTEC MAVRICA V BREŽICAH.
Predmet razpisanega natečaja: Predmet natečaja je novogradnja vrtca Mavrica v Občini Brežice. Investitor želi porušiti obstoječi montažni vrtec, v katerem je 13 oddelkov in zgraditi novega z 20 oddelki predšolskih otrok / 12 oddelkov za prvo starostno obdobje, 7 oddelkov za drugo starostno obdobje, 1 razvojni oddelek (predvideva naj se skupno 440 otrok, glede na to, da se bo število oddelkov za posamezno starostno obdobje lahko skozi čas spreminjalo). Za navedeno število otrok naj se predvidi kuhinja in vsa ostala infrastruktura povezana z navedenim številom otrok in temu potrebnega osebja. Predvidijo naj se prostori za upravo vrtca in svetovalno službo. Za parkiranje osebnih vozil staršev in zaposlenih je potrebno predvideti zadostno število parkirnih mest, za potrebe otrok pa ograjeno igrišče. Skupna površina novega vrtca obsega cca 4300m2 bruto etažnih površin. Celotna urbanistična ureditev/natečajno območje obsega 11.986m2. V okviru zunanje ureditve naj natečajniki izdelajo predlog celovite zasnove zunanje ureditve in rabe odprtega prostora ob vrtcu. Objekte novega vrtca je potrebno zasnovati energetsko varčno in stroškovno opravičljivo. Natančne zahteve naročnika so opredeljene v natečajni nalogi, ki je osnova za oblikovanje natečajne rešitve in je del tega razpisnega gradiva.
Naročnik: Občina Brežice v sodelovanju z ZAPS
Rok oddaje: 25.03.2011 00:00:00
Zaključno poročilo komisije: 21.04.2011 00:00:00
OCENJEVALNA KOMISIJA
Predsednik:
Miha KAJZELJ, univ.dipl.inž.arh.
Namestnica predsednika:
Tina BOŽIČNIK. univ.dipl.inž.arh.
Člani:
prof. Jurij KOBE, univ.dipl.inž.arh.
Anica KUPINA, učiteljica razrednega pouka
Anica HRIBAR, prof.biol.
Namestnici članov:
Damjana ZAVIRŠEK HUDNIK, univ.dipl.inž.arh.
Patricia ČULAR, univ.dipl.inž.rač.
Poročevalki:
Alenka KRAGELJ ERŽEN, univ.dipl.inž.arh, za A
Klara SULIČ, univ.dipl.inž.kraj.arh.za KA
Izvedenka za trajnostno gradnjo:
mag. Sabina JORDAN, univ.dipl.inž.arh.
Skrbnica natečaja:
Mojca STRAŠEK DODIG, univ.dipl.prav.
Vabilo na razstavo
Občina Brežice z Zbornico za arhitekturo in prostor Slovenije vabita na otvoritev razstave natečajnih rešitev.
Otvoritev bo v sredo 25. 5. 2011, ob 18:00 uri v prostorih Poslovnega centra Gasa, (Upravna enota Brežice), Cesta prvih borcev 24a, Brežice.
Razstava bo odprta vsak delovni dan med 8. In 18. uro do vključno 10.6.2011.