Predmet projektnega natečaja:
Vabljeni in odprti, projektni, dvostopenjski natečaj za izbiro strokovno najprimernejše rešitve za VEČSTANOVANJSKI OBJEKT ERJAVČEVA.
Predmet projektnega natečaja:
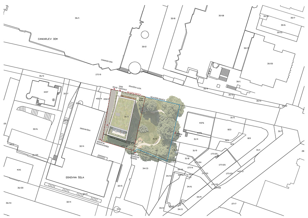
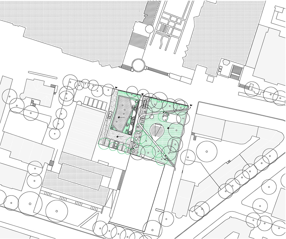
Naročnik načrtuje gradnjo večstanovanjskega objekta ob Erjavčevi cesti v Ljubljani. Na obravnavanem območju se načrtuje gradnja večstanovanjskega objekta s pritličjem v javni rabi v ožjem natečajnem območju (cca 1600 m2 bruto tlorisne površine) ter krajinsko arhitektura ureditev natečajnega območja (ca 1500 m2 tlorisne površine).
Dostop do natečajnega gradiva:
Dostop do natečajnega gradiva je brezplačen. Gradivo se prevzame s spletne strani www.zaps.si preko gesla. Geslo lahko potencialni natečajnik pridobi tako, da na elektronski naslov ZAPS natecaji@zaps.si z obveznim pripisom NATEČAJ ERJAVČEVA pošlje zahtevo za dostop do natečajnega gradiva in podpisano izjavo o varovanju poslovne skrivnosti (Priloga IZJAVA NATEČAJNO GRADIVO).
Naročnik: LEONTIPODIUM, d. o. o.
Rok oddaje: 17.4.2019
Zaključno poročilo komisije: 5.7.2019
Povezava na Portal JN:
Za dodatne informacije in vprašanja o natečaju lahko natečajniki oz. gospodarski subjekti pošljejo vprašanja na elektronski naslov ZAPS: natecaji@zaps.si z obveznim pripisom NATEČAJ ERJAVČEVA. Roki za postavljanje vprašanj so navedeni v poglavju NATEČAJNI ROKI. Odgovori na vprašanja, morebitne spremembe in pojasnila razpisne dokumentacije za natečaj bodo potencialnim natečajnikom dostopne prek gesla, na enak način kot natečajno gradivo. Pojasnila in spremembe so sestavni del razpisne dokumentacije za natečaj in jih je treba upoštevati pri pripravi natečajno ponudbene dokumentacije.
Oddaja elaborata:
1. stopnja: Natečajni elaborat mora prispeti do srede, 17.4. 2019 do 16:00 ure, ne glede na način dostave (osebno, dostavne službe, poštna pošiljka). Elaborate prevzema Zbornica za arhitekturo in prostor Slovenije (ZAPS), na naslovu Vegova 8, 1000 Ljubljana.
2. stopnja (navedeni roki so predvideni roki, dejanski roki bodo objavljeni po zaključeni prvi stopnji na spletni strani ZAPS www.zaps.si: objava rezultatov 1. stopnje in vabilo v drugo stopnjo: petek 26.4. rok oddaje za drugo stopnjo: Natečajni elaborat mora prispeti do četrtka, 6.6. 2019 do 16:00 ure, ne glede na način dostave (osebno, dostavne službe, poštna pošiljka). Elaborate prevzema Zbornica za arhitekturo in prostor Slovenije (ZAPS), na naslovu Vegova 8, 1000 Ljubljana.
Natečajne elaborate si lahko ogledate v prostorih naročnika, na Miklošičevi ulici 22 v Ljubljani, od 16.10. do 23.10.2019. Potrebna je predhodna najava po telefonu na številko +38641929377. Vljudno vabljeni!
OCENJEVALNA KOMISIJA
Predsednik ocenjevalne komisije (naročnik):
prof. Janez Koželj, univ. dipl. inž. arh.
Član (naročnik):
Urh Bahovec, univ. dipl. ekon.
Članica (naročnik):
Marija Bahovec, univ. dipl. ekon.
Članica (ZAPS):
Maja Ivanič, univ. dipl. inž. arh.
Član (ZAPS):
Rok Jereb, univ. dipl. inž. arh.
Poročevalka A:
Damjana Zaviršek Hudnik, univ. dipl. inž. arh.
Skrbnik natečaja:
Jure Henigsman, mag. inž. arh.
Sporočilo za javnost št. 2
Ocenjevalna komisija je v drugo stopnjo natečaja povabila avtorje naslednjih štirih elaboratov:
elaborat s šifro 11339,
elaborat s šifro 11235,
elaborat s šifro 30104,
elaborat s šifro 55713.
Natečajni roki za 2. stopnjo:
Rok za postavljanje vsebinskih vprašanj 2. stopnja: 10.5.2019
Rok za odgovore na vsebinska vprašanja 2. stopnja: 16.5.2019
Rok za postavljanje formalnih vprašanj 2. stopnja: 30.5.2019
Rok za odgovore na formalna vprašanja 2. stopnja: 4.6.2019
Rok za oddajo 2. stopnje do četrtka, 6.6.2019 do 16:00 ure na ZAPS.
Sporočilo za javnost št. 1
Naročnik roka za oddajo ne bo podaljšal.