Aktualno
Predmet projektnega natečaja:
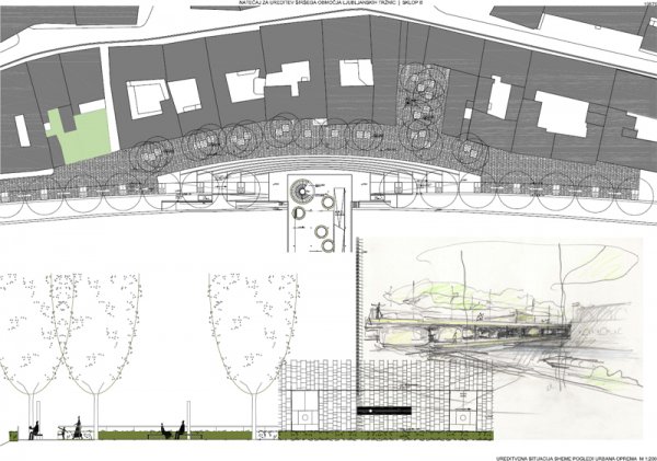
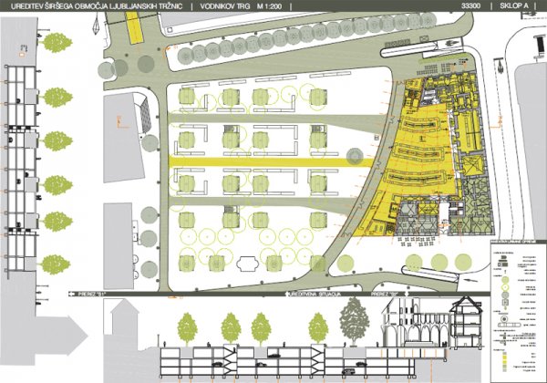
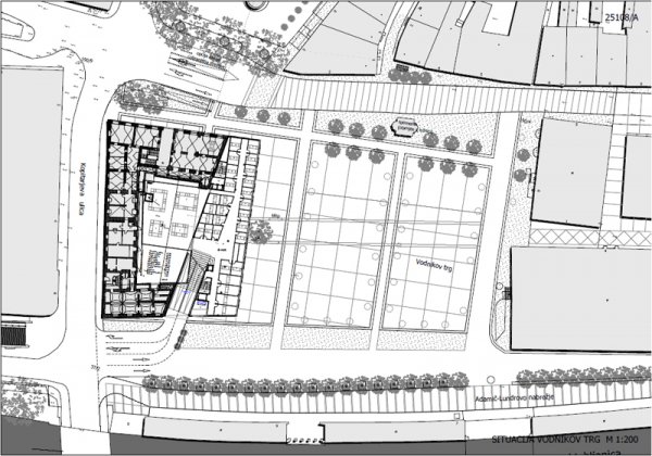
Javni, odprti, projektni, arhitekturni natečaj za izbiro strokovno najprimernejše rešitve na širšem območju ljubljanskih tržnic bo s tem natečajem izbrana:
A.Prizidek k Mahrovi hiši, sistem podzemnih parkirnih hiš na natečajnem območju, ureditev Vodnikovega trga, Pogačarjevega trga, Mačkove in Stritarjeve ceste, Ciril Metodovega trga in Adamič Lundrovega nabrežja,
B.Mesarski most,
C.Ureditev Petkovškovega nabrežja,
D.Ureditev Krekovega trga.
Naročnik: Mestna občina Ljubljana
Rok oddaje: 25.01.2008 23:59:59
Zaključno poročilo komisije: 03.03.2008 00:00:00
Povezava na Portal JN:
OCENJEVALNA KOMISIJA
predsednik
doc.mag.Tadej GLAŽAR, univ.dipl.inž.arh., MA (BIA)
namestnik predsednika
prof. Janez KOŽELJ, univ.dipl.inž.arh.
člani
mag. Miran GAJŠEK, univ.dipl.inž.arh.
Zdenka GROZDE, univ.dipl.iur.
Aleksander RAVNIKAR, univ.dipl.iur.
Dušan OGRIN, prof.emeritus.
Matija BEVK, univ.dipl.inž.arh.
Gregor VREŠ, univ.dipl.inž.kraj.arh.
namestnik članov MOL
Jurij LENARD, univ.dipl.inž.arh.
namestnica članov ZAPS
Maja IVANIČ, univ.dipl.inž.arh.
poročevalca
Monika KOVAČ MESARIČ, univ.dipl.inž.arh.
Primož HOČEVAR, univ.dipl.inž.arh.
skrbnica
Marinka ŠKRILEC LUKAČ, univ.dipl.inž.arh.
izvedenec za urbano sociologijo
prof.dr. Drago KOS, univ.dipl.soc.
izvedenec za konstr. zasnovo
prof.dr. Miljenko PRŽULJ, univ.dipl.inž.gradb.
izvedenec za promet
doc.dr. Tomaž MAHER, univ.dipl.inž.gradb.
izvedenka za umetn. zgodovino
dr. Breda MIHELIČ, prof.um.zg.
- Zaključno poročilo
- Razpisni pogoji
- Vprašanja in odgovori (4)
- Vprašanja in odgovori (3)
- Vprašanja in odgovori (2)
- Vprašanja in odgovori (1)
- Območje neposredne zunanje ureditve makete prizidka
- Območje neposredne zunanje ureditve makete mosta
- Avtorske pogodbe
- Sklep o zaključku javnega natečaja za ureditev širšega območja Ljubljanskih tržnic