Predmet projektnega natečaja:
Javni, projektni, odprti, anonimni, enostopenjski, arhitekturni natečaj za izbiro strokovno najprimernejše rešitve za ŠPORTNI OBJEKTI ZA POTREBE SREDNJE ZDRAVSTVENE ŠOLE TER BIOTEHNIŠKE ŠOLE RAKIČAN.
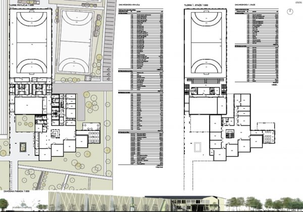
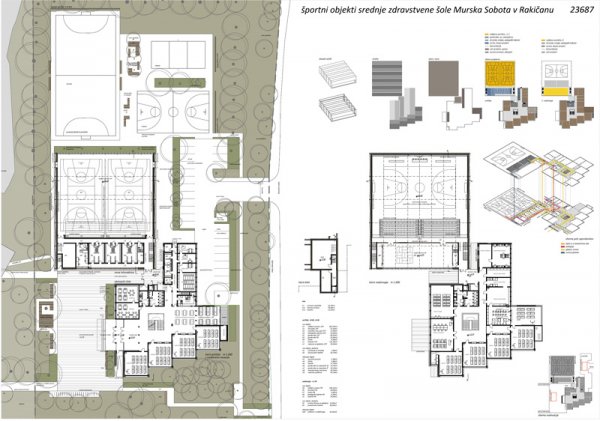
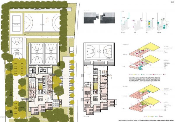
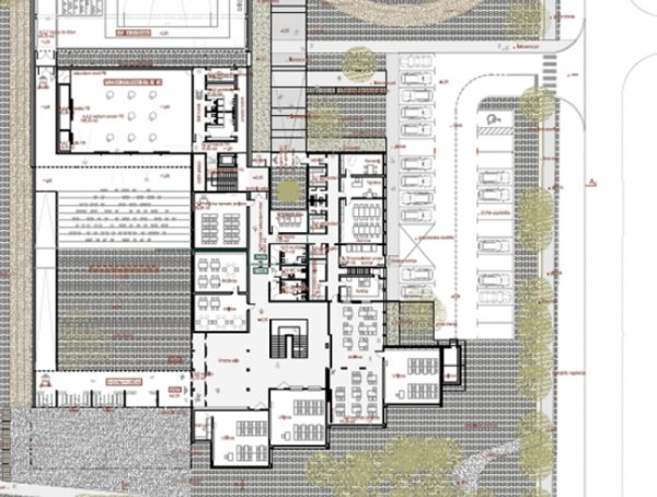
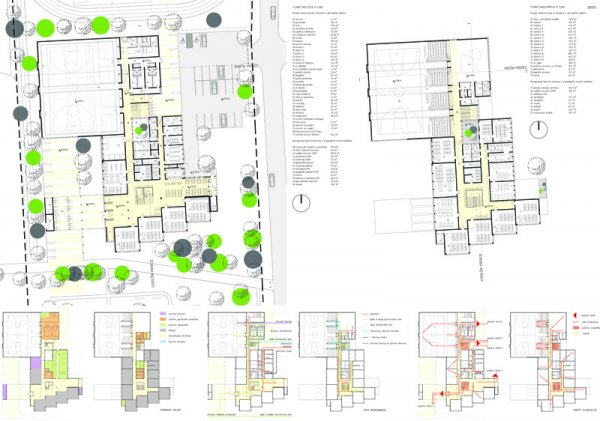
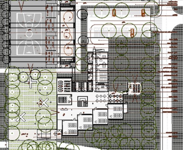
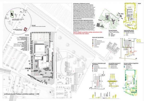
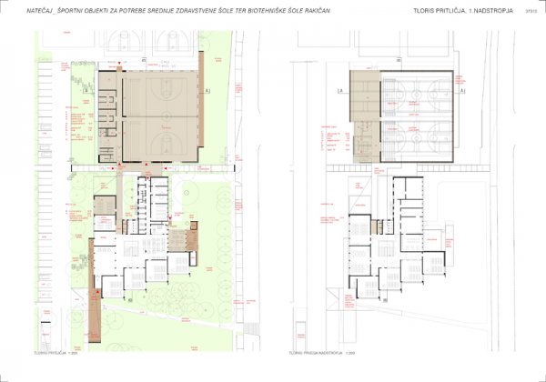
Predmet razpisanega natečaja so štirje posegi na in ob obstoječem objektu Srednje zdravstvene šole Murska Sobota v naselju Rakičan: novogradnja športne dvorane za Srednjo zdravstveno šolo Murska Sobota in Biotehniško šolo Rakičan, ureditev zunanjih športnih igrišč v kompleksu Srednje zdravstvene šole Murska Sobota in z njimi povezanih ureditev okolja, preoblikovanje fasadnega plašča obstoječega objekta Srednje zdravstvene šole Murska Sobota ter oblikovanje novogradnje prizidka jedilnice na vzhodni strani obstoječega šolskega objekta.
Naročnik: Srednja zdravstvena šola Murska Sobota
Rok oddaje: 26.04.2012 00:00:00
Zaključno poročilo komisije: 28.06.2012 10:58:05
OCENJEVALNA KOMISIJA
Predsednik:
Aleksander S. OSTAN, univ.dipl.inž.arh.
Namestnica predsednika:
Zlatka LEBAR, univ.dipl.ped.
Člani:
Rok BENDA, univ.dipl.inž.arh.
Suzana KORUN, univ.dipl.inž.kraj.arh.
Andrej ŠMID, univ.dipl.inž.arh.
Namestnika članov:
Bojan LEBAR, univ.dipl.inž.arh.
Božidar ŠALAMON, prof.mat.fiz.
Poročevalka:
Špela NARDONI KOVAČ, univ.dipl.inž.arh.
Skrbnica natečaja:
Klara SULIČ, univ.dipl.inž.kraj.arh.
Vabilo na razstavo
Ministrstvo za izobraževanje, znanost, kulturo in šport, Srednja zdravstvena šola Murska Sobota ter Zbornica za arhitekturo in prostor Slovenije vabijo na otvoritev razstave natečajnih rešitev. Otvoritev bo v torek, 3.7.2011, ob 18.00 uri v prostorih Srednje zdravstvene šole Murska Sobota, Ulica dr. Vrbnjaka 2, Rakičan. Razstava bo odprta do vključno 20.8.2012 razen ob sobotah in nedeljah med 8.00 in 15.00 uro.
- A_B Natečajni pogoji
- A_B_priloga_1_tabela_povrsin
- A_B_priloga_2_layout_plakatov
- C_natecajna_naloga
- D_natecajne_podlage
- E_natecajne_priloge
- F_zapisnik o ogledu lokacije
- G_1_Odgovori na vsebinska vprasanja
- G_2_posnetek obstojece sole
- G_3_Odgovori na vsebinska vprasanja_dopolnitev
- H_Odgovori na formalna vprasanja
- I_zaključno_poročilo