Predmet projektnega natečaja:
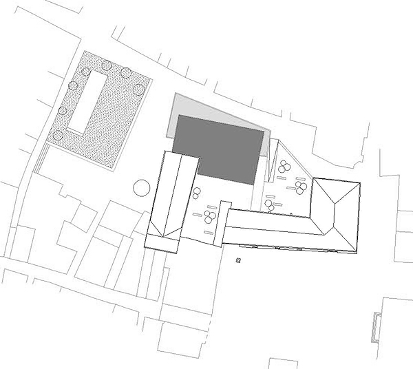
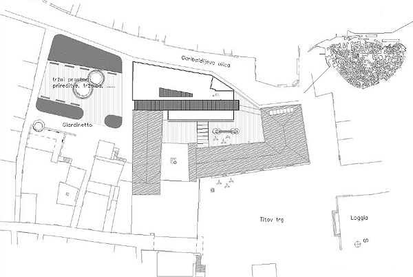
Javni državni anonimni enostopenjski natečaj za idejno arhitekturno rešitev prostorov rektorata Univerze na Primorskem in Fakultete za humanistične študije v Kopru
Naročnik: Ministrstvo za šolstvo, znanost in šport RS
Rok oddaje: 11.11.200314:00:02
Zaključno poročilo komisije: 3.12.2003 00:00:00
OCENJEVALNA KOMISIJA
predsednik:
Dr. Lucija Čok
člani:
Branka Arnautović, univ.dipl.inž.arh.
Dr. Ana Sonja Hoyer
Prof. Janez Koželj, univ.dipl.inž.arh.
Aleksander Bizjak, univ.dipl.inž.arh.
namestniki:
Milena Todorič Toplišek, univ.dipl.inž.arh.
Jana Gojanović Purger, univ.dipl.inž.arh.
Marko Apollonio, univ.dipl.inž.arh.
poročevalka:
Majda Skrinar, univ.dipl.inž.arh.
skrbnica:
Valnea Družeta, univ.dipl.inž.arh.