Predmet projektnega natečaja:
Javni, idejni, odprti, anonimni, enostopenjski, urbanistični natečaj za izbiro strokovno najprimernejše rešitve za zasnovo Partnerstvo Celovška.
Podatki o nagradnem skladu ter odškodninah:
- 1. nagrada 20.000,00 EUR
- 2. nagrada 15.000,00 EUR
- 3. nagrada 12.000,00 EUR
- tri priznanja po 3.800,00 EUR
- odškodnine po 600,00 EUR
Natečajniki, ki bodo natečajni projekt izdelali skladno z razpisanimi natečajnimi pogoji in natečajno nalogo, ter po mnenju ocenjevalne komisije dosegli zahtevano stopnjo obdelave, pa ne bodo prejeli nagrade ali priznanja, bodo prejeli odškodnino. V kolikor bo pripuščenih v ocenjevanje manj kot 24 natečajnih del, bodo podeljene odškodnine v višini 600,00 EUR sicer se bodo znižale.
Vsi navedeni zneski so v bruto bruto vrednostih.
Predmet razpisanega natečaja
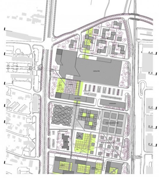
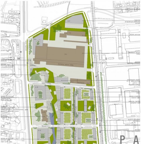
je pridobiti urbanistično zasnovo mestnega predela med Celovško cesto, Cesto Ljubljanske brigade, Severno obvozno cesto in gorenjsko železnico, ki obsega 43 ha površin. V natečajnih rešitvah je treba opredeliti zasnovo dejavnosti, omrežje odprtih površin, zasnovo stavbne strukture in prometnega omrežja ter zasnovo trajnostnega razvoja območja.
Naročnik: Mestna občina Ljubljana s partnerji A1, d.d., Ganamm, d.o.o., Geoplin plinovodi d.o.o., Geoplin d.o.o., Kranjska investicijska družba d.o.o. in Stolp gradnje d.o.o.
Rok oddaje: 14.10.2011 00:00:00
Zaključno poročilo komisije: 06.12.2011 10:56:00
OCENJEVALNA KOMISIJA
Predsednik:
doc. Bogdan REICHENBERG, univ.dipl.inž.arh.
Namestnik predsednika:
mag. Miran GAJŠEK, univ.dipl.inž.arh.
Člani:
dr. Aleš MLAKAR, univ.dipl.inž.kraj.arh.
doc. dr. Manca PLAZAR, univ.dipl.inž.arh.
Primož HOČEVAR, univ.dipl.inž.arh.
Blaž LOKAR, mag.ekon.
Jože ANDERLIČ
Matija TOMORI, univ.dipl.inž.arh.
Marjan VENGUST, dipl.inž.grad.
Namestnika članov:
mag. Polona FILIPIČ, univ.dipl.inž.arh.
Tomaž LEVIČAR, univ.dipl.inž.arh.
Poročevalka:
Irena OSTOJIČ, univ.dipl.inž.arh.
Skrbnik natečaja:
Maj JUVANEC, univ.dipl.inž.arh.
Sporočilo za javnost št. 8
Obveščamo vas, da je dolg po izvršbi v celoti poplačan. Poleg neporavnane obveznosti v višini 33% za natečajnike in v višini 20% za ocenjevalno komisijo bodo prejeli še izplačilo 25% zamudnih obresti na neizplačan del honorarja.
Sporočilo za javnost št. 7
Oktobra 2015 je sodba postala pravnomočna. KID smo pozvali k plačilu, ker plačila nismo prejeli smo vložili predlog za izvršbo. Sklep o izvršbi je postal pravnomočen novembra 2015. Plačila s strani KID še nismo prejeli.
Sporočilo za javnost št. 6
V mesecu januarju 2013 smo prejeli ponudbo KID d.o.o., da so pripravljeni poravnati 50% tožbenega zahtevka. ZAPS je s ponudbo seznanila sodelujoče natečajnike in člane ocenjevalne komisije in od njih pridobila soglasje za poravnavo, a je poravnava v fazi sodnega postopka bila neuspešna.
Dne 10.12.2014 smo prejeli sodbo Okrožnega sodišča v Ljubljani, da je tožena stranka KID d.o.o. dolžna tožeči stranki ZAPS plačati dolgovani znesek v celoti. Sodišče je z izdajo sodbe v celoti ugodilo ZAPSu. Sodba še ni pravnomočna, ker se je tožena stranka KID d.o.o. na sodbo pritožila.
Sporočilo za javnost št. 5
va izmed partnerjev, plačnika deleža pogodbene vrednosti, nista poravnala svojih obveznosti. Eden ima blokiran račun od maja 2012, drugi ima zaprt račun. Preko odvetniške pisarne si še vedno prizadevamo za poplačilo izstavljenih računov. O morebitnem prejemu nakazil vas bomo takoj obvestili.
Sporočilo za javnost št. 4
Dva izmed partnerjev kot razpisovalca in plačnika deleža pogodbene vrednosti nista poravnala svojih obveznosti. Prizadevamo si za poplačilo izstavljenih računov. O morebitnem prejemu nakazil vas bomo takoj obvestili. V skladu z natečajnimi pogoji (točka 4.10.) preostalega zneska pred plačilom s strani naročnika natečaja natečajnikom ne moremo nakazovati.
Sporočilo za javnost št. 3
Natečajnike obveščamo, da ZAPS izplačuje honorarje za podeljene nagrade, priznanja in odškodnine v višini 67%, to je v višini zneska kot ga je prejela s strani partnerjev. Takoj po prejemu preostalega zneska s strani partnerjev bodo natečajniki prejeli še razliko.
Sporočilo za javnost št. 2
ZAPS pričakuje nakazilo za izplačilo honorarjev za podeljene nagrade, priznanja in odškodnine do konca prihodnjega tedna, takoj po prejemu zneska bomo obvestilo objavili na spletni strani zbornice.
Sporočilo za javnost št. 1
Natečajnike obveščamo, da zbornica v skladu z točko 4.10. natečajnih pogojev še ne more nakazovati avtorskih honorarjev ker partnerji še niso nakazali ustreznega zneska po pogodbi na račun Zbornice za arhitekturo in prostor Slovenije.
Vabilo na razstavo
Mestna občina Ljubljana s partnerji A1, d.d., Ganamm, d.o.o., Geoplin plinovodi d.o.o., Geoplin d.o.o., Kranjska investicijska družba d.o.o. in Stolp gradnje d.o.o. z Zbornico za arhitekturo in prostor Slovenije vabita na otvoritev razstave natečajnih rešitev, otvoritev bo v ponedeljek, 19.12.2011, ob 12.00 uri v Desnem atriju ljubljanske Mestne hiše, Mestni trg1. Ljubljana Razstava bo odprta do vključno 5.1.2012.