Predmet projektnega natečaja:
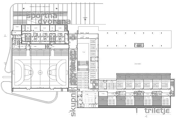
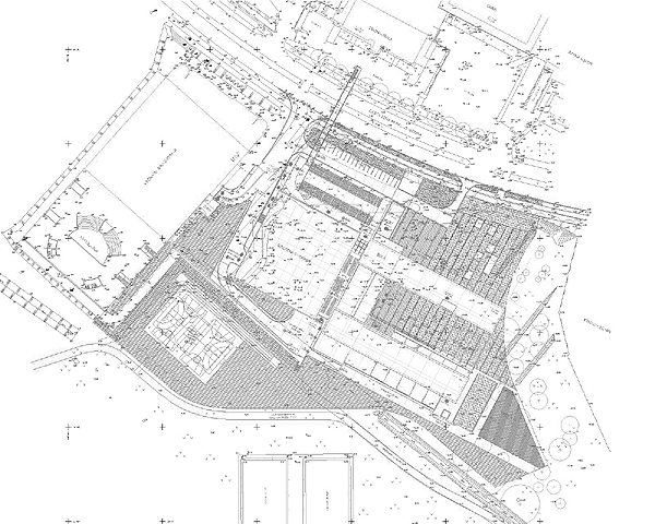
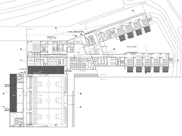
Javni, državni, anonimni enostopenjski projektni natečaj za pridobitev arhitekturne rešitve za novo mestno šolo na Bonifiki v Kopru
Naročnik: Mestna občina Koper
Rok oddaje: 6.4.2004 14:08:19
Zaključno poročilo komisije: 25.10.2004 00:00:00
OCENJEVALNA KOMISIJA
predsednik:
Darko GRAD, univ. dipl. inž. prav., MOK
namestnik predsednika:
Viljan TONČIČ, univ. dipl. inž. gradb., MOK
člana žirije za naročnika:
Anton BALOH, prof. ravnatelj OŠ Anton Ukmar Koper
Gorazd KOBAL, univ. dipl. inž. arh.
člana žirije za ZAPS:
Dare LEČNIK, univ.dipl. inž. arh.
Miha KAJZELJ, univ. dipl. inž. arh.
Rok BENDA, univ. dipl. inž. arh.
namestnika:
Artur MLINAR, univ. dipl. inž. arh. MOK
Rado PRODAN, univ. dipl. inž. arh., DAO
poročevalki:
Bojana STROJ NUČIČ, univ. dipl. inž. arh.
Urša VRHUNC, univ. dipl. inž. arh.
skrbnica:
Marjetica GARZAROLLI, univ. dipl. inž. arh.