Predmet projektnega natečaja:
Predmet razpisanega natečaja je v 1. stopnji urbanistična zasnova območja vključno z oblikovanjem odprtih prostorov in ureditev mirujočega prometa ter arhitekturna zasnova Kopitarjevega centra z ureditvijo Kopitarjevega trga in Trga pod lipami ter v 2. stopnji podrobnejša izdelava natečajne rešitve iz 1. stopnje s poudarkom na podrobnejši arhitekturni rešitvi Kopitarjevega centra z ureditvijo Kopitarjevega trga in Trga pod lipami.
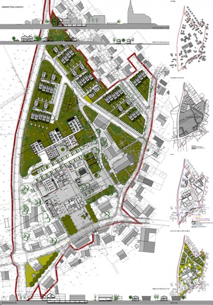
Idejni del natečaja predstavlja urbanistična zasnova območja ter funkcionalne zasnove stanovanjskih objektov in doma starejših občanov.
Projektni del natečaja predstavljajo arhitekturna rešitev Kopitarjevega centra ter podrobnejše ureditve odprtih prostorov Kopitarjevega trga in Trga pod lipami.
Naročnik: Občina Vodice
Rok oddaje: 30.4.2013 16:00:00
Zaključno poročilo komisije: 07.06.2013 14:17:15
OCENJEVALNA KOMISIJA
Predsednik:
Primož HOČEVAR, univ.dipl.inž.arh.
Namestnik predsednika:
Aco Franc ŠUŠTAR, župan
Člani:
Špela NARDONI KOVAČ, univ.dipl.inž.arh.
Matija BEVK, univ.dipl.inž.arh.
Franc MERVAR, župnik
Karla JANKOVIČ, univ.dipl.inž.kraj.arh.
Rok BENDA, univ.dipl.inž.arh.
Namestniki članov:
doc.dr. Alenka FIKFAK, univ.dipl.inž.arh.
Tatjana RESMAN, univ.dipl.geog.
Pero KOVAČIĆ, dipl.inž.grad.
Poročevalka:
Maša ŽIVEC, univ.dipl.inž.arh.
Skrbnica natečaja:
Klara SULIČ, univ.dipl.inž.kraj.arh.
Vabilo na razstavo
Občina Vodice z Zbornico za arhitekturo in prostor Slovenije vabita na otvoritev razstave natečajnih rešitev. Otvoritev bo v sredo, 19.6.2013, ob 18.00 uri v dvorani Kulturnega doma Vodice, Kopitarjev trg 1, 1217 Vodice. Razstava bo odprta do vključno 5.7.2013 vsak delovni dan od 16.00 do 18.00 ure.
- A_B_natecajni_pogoji
- A_B_priloga_1_tabela_povrsin
- A_B_priloga_2_vsebina_pisnega_dela
- A_B_priloga_3_1_vsebina_plakatov_I.stopnja
- A_B_priloga_3_2_vsebina_plakatov_II.stopnja
- C_natecajna_naloga
- D_natecajne podlage
- E_natecajne_priloge
- F_1_Odgovori na vsebinska vprasanja
- G_1_Odgovori na formalna vprasanja
- H_Porocilo_o_izboru_1-stopnja
- I_2. stopnja_odgovori na vsebinska vprasanja
- J_2.stopnja_odgovori na formalna vprasanja
- J_2.stopnja_odgovori na formalna vprasanja_Dopolnitev
- K_zakljucno_porocilo