Aktualno
Predmet projektnega natečaja:
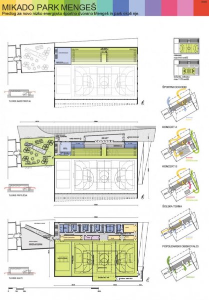
Javni, projektni, odprti, anonimni, enostopenjski, arhitekturni natečaj za izbiro strokovno najprimernejše rešitve za objekt nizkoenergijske večnamenske športne dvorane pri OŠ Mengeš in javni, idejni, anonimni, enostopenjski, krajinsko arhitekturni natečaj za celovito ureditev širšega javnega odprtega prostora in rekreacijskega območja ob Pšati
Vsem udeležencem natečaja se zahvaljujemo za sodelovanje in vas prosimo, da v skladu z natečajnimi pogoji do vključno 4. 5. 2010, v času uradnih ur ZAPS (vsak delavnik med 8.00 in 12.00 uro, razen ob torkih med 12.00 in 16.00 uro) dvignete svoje natečajne elaborate. Da bi mogli pravočasno pripraviti gradivo, ki ga boste prevzeli, prosimo, da predhodno sporočite šifro vašega elaborata ter naziv natečaja z e-sporočilom na naslov barbara.pungercar@zaps.si ali po telefonu v času uradnih ur na št. 01 24 20 672. Po tem datumu gradiva ne bomo več hranili!
Naročnik: Občina Mengeš
Rok oddaje: 02.10.2009 23:59:59
Zaključno poročilo komisije: 03.12.2009 00:00:00
OCENJEVALNA KOMISIJA
Predsednica:
Maruša ZOREC, univ.dipl.inž.arh.,
imenovana s strani ZAPS
Namestnica predsednice:
Marija KOS, direktorica občinske uprave,
imenovana s strani naročnika
Člani:
Breda JAMŠEK, univ.dipl.inž.grad.,
imenovana s strani naročnika
Urša MIHELČIČ GLAVAN, univ.dipl.inž.arh.,
imenovana s strani naročnika
mag. Franci KODELA, univ.dipl.prav.,
imenovan s strani naročnika
Robert POTOKAR, univ.dipl.inž.arh.,
imenovan s strani ZAPS
mag. Maja SIMONETI, univ.dipl.inž.kraj.arh.,
imenovana s strani ZAPS
Namestnika:
Franc JERIČ, župan Občine Mengeš,
imenovan s strani naročnika
Vid RAZINGER, univ.dipl.inž.arh.,
imenovan s strani ZAPS
Izvedenka za nizkoenergijsko gradnjo:
izr.prof.dr. Martina ZBAŠNIK SENEGAČNIK, univ.dipl.inž.arh.
Poročevalca:
Gašper ZALAR, univ.dipl.inž.arh.,
imenovan s strani ZAPS
Klara SULIČ, univ.dipl.inž.kraj.arh.,
imenovana s strani ZAPS
Skrbnica:
mag. Barbara ŽIŽIČ, univ.dipl.inž.arh.